




50 Av. Daumesnil
75012 Paris
440 m²
495 €
HT/HC/m²/an
Disponibilité : Immédiate

Sophie HUYNH
Description
Bureaux à louer Paris 12
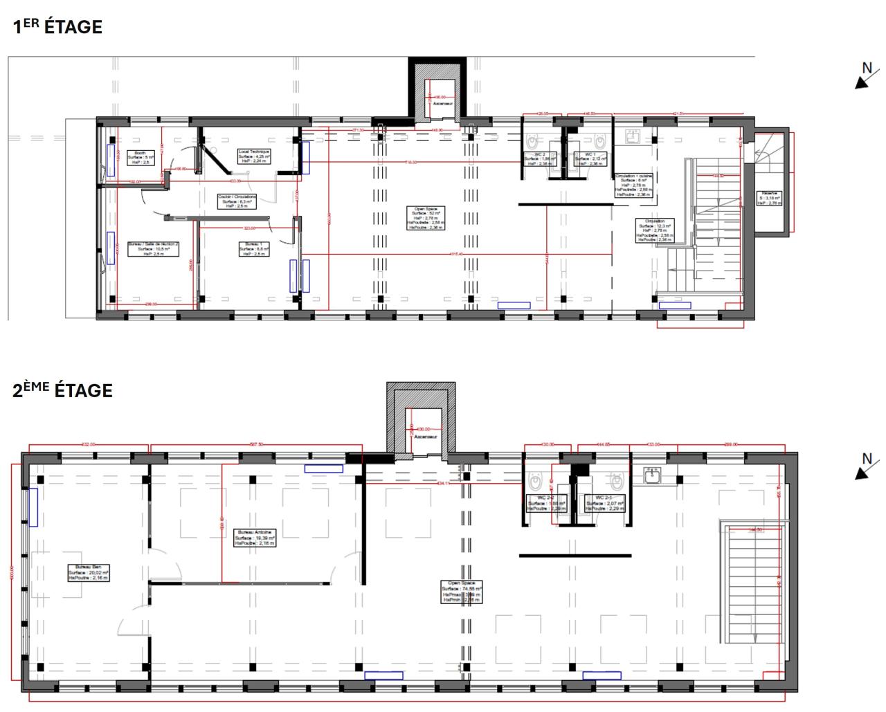
BNP Paribas Real Estate vous propose des bureaux rénovés à partir de 123 m², situés au pied de la gare de Lyon avec une connexion directe au métro lignes 1/14 et RER A et D.
Surfaces disponibles sur 2 étages disposant de grands plateaux rationnels et climatisés.
Les locaux sont aménagés en open-space, avec des prestations techniques de qualité telles que la climatisation, le câblage informatique (uniquement au 10e étage), ascenseurs, sécurité, hôtesse d'accueil, parkings.
Au 4e étage : 123 m², 161 m², 158 m², 220 m², 328 m², 351 m² ou 779 m²
Au 10e étage : 131 m², 170 m² ou 355 m²
L'immeuble bénéficie également d'un label BBC.
Offre à ne pas manquer, idéale pour tous types de sociétés.
Disponibilité immédiate
Bureaux à louer Paris Gare de Lyon
Services & prestations
Aménagements
-
Accueil : Hôtesses
-
Accès Pers. Mobilité Réduite
Equipements
-
Ascenseurs : 4
-
Climatisation
-
Câblage informatique : Cat.7
-
Type de chauffage : Collectif
Prestations de service
-
Parking : Intérieur
-
Sécurité
Type / Etat du bâtiment
-
Etat des locaux : Rénové
-
Orientation façade : SUR RUE
Informations complémentaires
-
Loyer archives : 200€/m²/an HT HC










