- Paramétrer l'affichage
Actualiser la recherche quand je déplace la carte
Lorsque cette option est activée, les résultats de recherche s'actualisent en fonction du positionnement de la carte.Paramétrer la zone de distance
- Paramétrer la zone
Lorsque cette option est activée, une zone de distance s'affiche autour d'un point sélectionné.
Personnalisez et délimitez la zone de distance en fonction du moyen de locomotion. Par défaut, la zone est programmée à 5 min à pieds.
Moyen de locomotion :
en voitureen transportsà véloà piedsTemps de trajet :
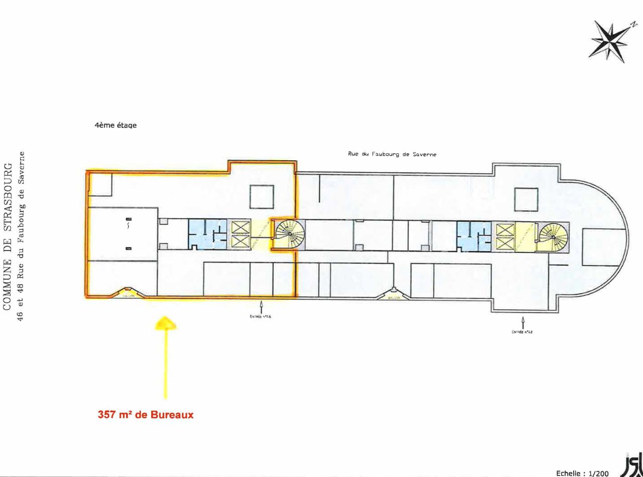
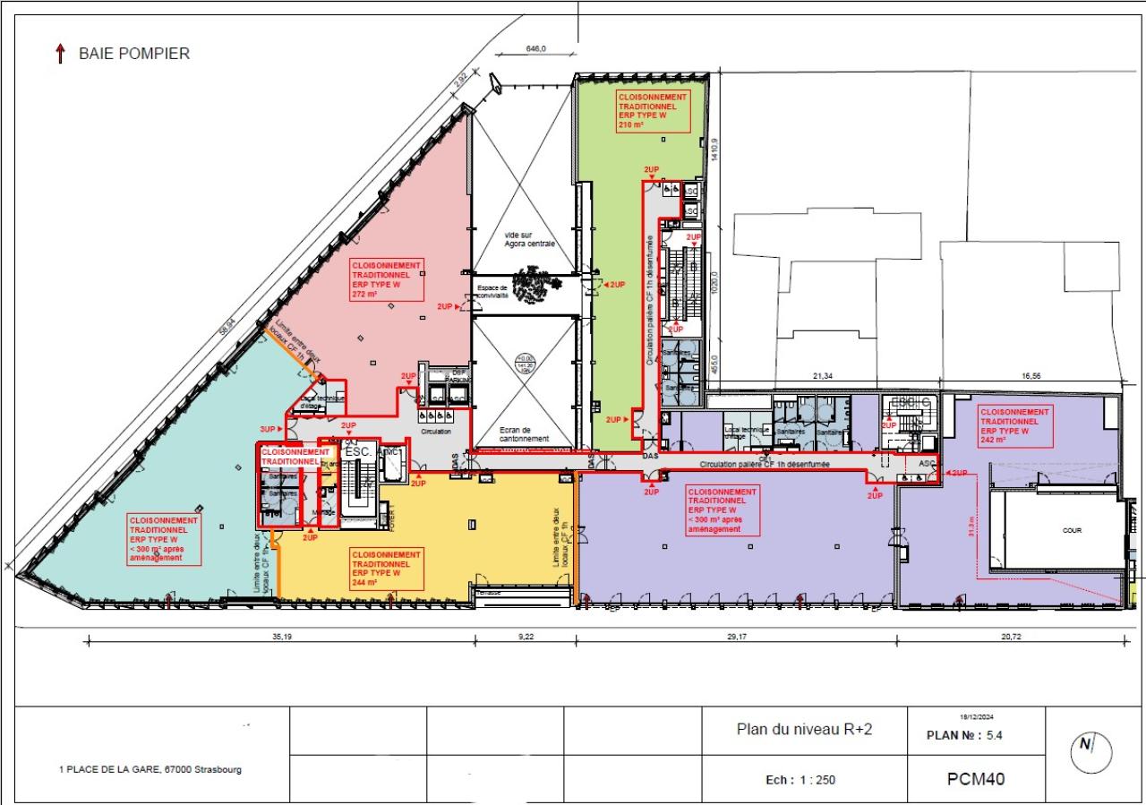
Location Bureaux Strasbourg (67000)
28 bureaux à louer et 12 à proximité.
Comparateur

Location Bureau Strasbourg : tout savoir
Louer des bureaux à Strasbourg : une implantation stratégique au cœur de l’Europe
Strasbourg, capitale de la région Grand Est et chef-lieu du Bas-Rhin, est une ville européenne incontournable pour les entreprises en quête d’un environnement dynamique, international et connecté. Opter pour une location de bureaux à Strasbourg revient à choisir une métropole à la fois riche de son patrimoine historique et tournée vers l’avenir.
Une ville européenne à forte attractivité économique
Strasbourg est le siège de nombreuses institutions européennes majeures telles que le Parlement européen, le Conseil de l’Europe ou encore la Pharmacopée européenne. Cette dimension internationale attire chaque année de nombreuses entreprises souhaitant s’implanter dans un centre décisionnel stratégique.
La ville bénéficie également d’un marché immobilier tertiaire dynamique, avec une offre variée de bureaux à louer à Strasbourg adaptés à tous les besoins : espaces flexibles, coworking, immeubles de standing ou locaux professionnels en périphérie. Découvrez notre sélection de bureaux disponibles à la location à Strasbourg pour trouver l’espace qui correspond à votre activité.
Pour mieux comprendre les dynamiques du marché local, consultez notre article sur l’exception strasbourgeoise du marché des bureaux en régions.
Un écosystème économique solide et diversifié
Strasbourg est un pôle économique majeur du Grand Est, accueillant des sièges sociaux d’entreprises de renom telles que Lidl France, Le Crédit Mutuel, Puma France ou encore Le Coq Sportif. Louer un bureau à Strasbourg, c’est rejoindre un tissu économique dynamique, propice au développement et à l’innovation.
La ville est également classée troisième ville préférée des entrepreneurs en France, après Lyon et Lille, selon plusieurs études récentes. Cette attractivité s’explique par la qualité de vie, la richesse de son réseau de transports et la diversité de son offre immobilière. Consultez nos offres de location de bureaux à Strasbourg pour en savoir plus.
Découvrez comment Strasbourg, Nancy et Metz renouvellent l’immobilier de bureaux en centre-ville.
Une localisation idéale au carrefour de l’Europe
Située à la frontière avec l’Allemagne, Strasbourg est un véritable carrefour européen. Elle offre un accès rapide aux marchés allemands, suisses et luxembourgeois, ce qui en fait un emplacement stratégique pour les entreprises ayant des partenaires ou clients internationaux. Grâce à son réseau de transports performant (TGV, autoroutes, tramway, pistes cyclables), Strasbourg facilite les déplacements professionnels au quotidien.
Vous souhaitez vous implanter dans une ville connectée et accessible ? Découvrez nos solutions d’immobilier d'entreprise à Strasbourg ou explorez la location de bureaux dans le Grand Est.
Pour aller plus loin, découvrez pourquoi l’Eurométropole de Strasbourg reste toujours aussi attractive et comment le Parc d’Innovation de Strasbourg devient une vitrine technologique de la région.
Une qualité de vie propice à l’installation durable
Strasbourg, classée 4e ville étudiante de France et 1ère ville cyclable, séduit par son cadre de vie agréable, entre canaux, maisons à colombages et espaces verts. Louer un bureau à Strasbourg, c’est aussi offrir à vos collaborateurs un environnement de travail stimulant et équilibré.
Découvrez également des projets innovants comme Archipel II, des bureaux neufs pour travailler au vert, ou encore l’Espace Européen de l’Entreprise, pôle tertiaire de référence pour l’Eurométropole.
Pour découvrir plus d'offres à proximité immédiate de Strasbourg, n'hésitez pas à consulter les offres de bureaux à louer à Schiltigheim ou les offres de bureaux à la location à Lingolsheim.
Enfin, explorez des projets régionaux comme Axioparc, un écoparc clé en main dans le Grand Est.




















































































































































































































































































































































































































































































































































































































































































































































































































