




Espace de coworking
69003 Lyon
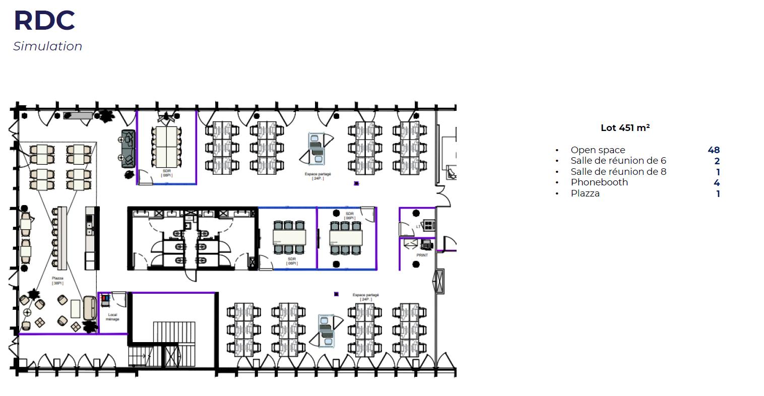
48 postes
Prix sur demande
Disponibilité : Immédiate

Sandra CLOT-FRONTERI
Description
COWORKING - PART-DIEU CENTRE
RUE DE LA VILLETTE - 69003 LYON
Au sein de nos espaces nous créons des lieux innovants pour s’adapter aux nouveaux enjeux de travail : Créer des lieux flexibles et chaleureux.
Nous vous proposons à la location des bureaux situés au R+6, avec un maximum de 48 postes.
Des bureaux en coworking pensés pour le bien-être au travail et adaptés aux nouveaux usages.
LA MIXITÉ URBAINE au cœur du projet EMERGENCE.
Un immeuble ouvert sur la ville, proposant une mixité d’utilisations afin de s’adapter aux besoins des occupants.
Services & prestations
Aménagements
-
Accueil : Avec tisanerie
-
Espaces Co-working : 48 Places
Equipements
-
Ascenseurs : 3
-
Climatisation : Réversible
-
Eclairage Bureaux : Luminaires encastrés LED
-
Faux plafond : Dal. fibres minéral. 2,70 cm
-
Faux plancher : Certification C2C
Prestations de service
-
Sécurité : Vidéo-surveillance
Extérieurs
-
Terrasses - jardins : Terrasse privative R+4 : 140m²
-
Trame de façade : 1,35 mètre(s)
Normes, Certifications et Labels
-
Certification : BREEAM
Type / Etat du bâtiment
-
Etat de l'immeuble : Neuf
-
Etat des locaux : Neuf
Informations complémentaires
-
Brise-soleil orientable, Vestiaires & douches au RDC
-
Salle de réunion/Conférence, Service de conciergerie (pressing, courses, service à la personne...), Système de climatisation et d'éclairage éco-intelligent










