




INKOO
23 Quai de Brienne
33800 Bordeaux
4 765 m²
Divisible dès 445 m²
220 €
HT/HC/m²/an
Disponibilité : Mai 2025

Maxence DUMONT
Description
Bureaux à louer Bordeaux Euratlantique – Immeuble neuf avec vues Garonne et terrasse
BNP PARIBAS REAL ESTATE vous propose un immeuble nodal en entrée de ville.
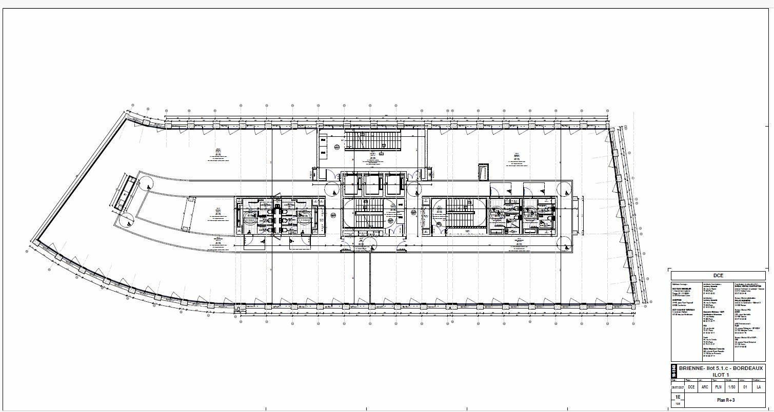
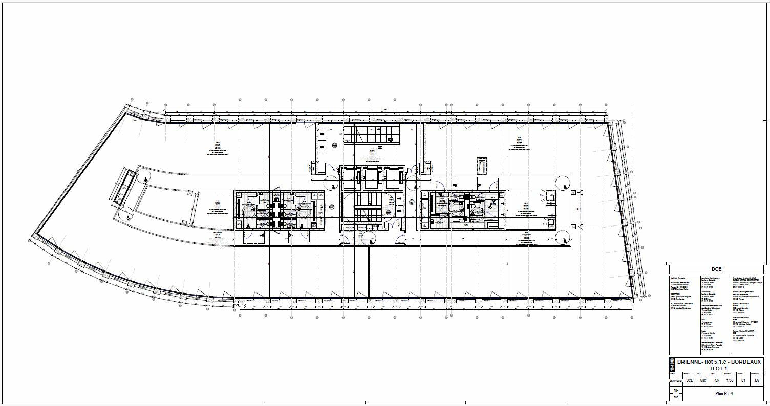
Les plateaux traversant vitrés toute hauteur offrent de magnifique vues.
Idéalement situé au cœur du quartier d'affaires d'Euratlantique et en face du pont Simone Veil. Visibilité exceptionnelle à Boriques vues sur la Garonne avec 95% d'espace en premier jour. Grande Terrasse accessible au 1er étage
BNP Paribas Real Estate vous propose INKOO, un immeuble de bureaux neuf de 6 800 m² situé au coeur du quartier Bordeaux Euratlantique, face au pont Simone Veil. Ce programme emblématique s'implante à l'entrée de ville, dans un secteur en pleine transformation, alliant performance, accessibilité et innovation.
Labellisé HQE Excellent, BBCA et WiredScore, INKOO s'inscrit dans une dynamique de conception responsable et connectée, pensée pour accompagner les nouveaux usages du travail.
Un immeuble tertiaire dernière génération dans un quartier en pleine évolution
Au sein d'un environnement urbain dynamique, INKOO propose des surfaces de bureaux divisibles à partir de 445 m², disponibles à partir de mai 2025. Le bâtiment est conçu pour offrir confort, flexibilité et efficacité énergétique, en lien direct avec les mobilités et les grands équipements métropolitains.
Prestations techniques et services :
- Aménagement en open-space
- Climatisation réversible 4 tubes par groupes froids
- Capacitaire 1 personne / 10 m²
- Faux plancher technique de 7 cm
- Faux plafond en dalles minérales
- Palliers éclairés en premier jour
- Hall d'accueil collectif
- Contrôle d'accès sécurisé
- Ascenseurs
- 90 places de stationnement
- Accessibilité PMR
- Classification ERP 5 possible
Au total, 4 765 m² de bureaux restent disponibles à la location, avec des surfaces adaptables selon les besoins locatifs.
Une localisation stratégique, connectée à la métropole
Situé à proximité immédiate des principaux axes de transport, INKOO bénéficie d'une accessibilité optimale :
- Bus Express G, lignes K, M, H
- Tramway C et D arrêt Carle Vernet à 10 minutes à pied
- À quelques minutes de la Gare Bordeaux Saint-Jean
- Accès rapide aux boulevards et à la rocade
- Proximité immédiate du pont Simone Veil, reliant les deux rives
INKOO s'impose comme une adresse de référence pour les entreprises recherchant un immeuble à haute valeur ajoutée, dans un quartier à fort potentiel d'évolution.
À découvrir également dans le secteur
- Bureaux à louer à Bordeaux Euratlantique
- Espaces de bureaux à louer Gare Saint-Jean Bordeaux
- Location de bureaux à Bordeaux Belvédère rive droite
Contactez BNP Paribas Real Estate
Ne manquez pas cette opportunité unique de bureaux neufs à louer à Bordeaux, dans un immeuble certifié, connecté et durable. INKOO incarne l'avenir des espaces de travail en ville. Contactez nos équipes pour en savoir plus ou organiser une présentation personnalisée.
Disponible immédiatement.
Services & prestations
Aménagements
-
Accueil : Espace d'attente
-
Accès Pers. Mobilité Réduite
-
Aménagement des bureaux : Espaces Ouverts
-
Complexe Salle de réunion : Privatisable à l'entresol
-
Effectif théorique : 653 personnes, 1p/10,42 m²
-
Hall d'accueil : Collectif
Equipements
-
Ascenseurs
-
Climatisation : Réversible 4 Tubes
-
Distribution climatisation : Ventilo convecteur en plafonnier
-
Douche : En RDC
-
Eclairage Bureaux : Luminaires encastrés LED
-
Faux plafond : Acoustiques, Dal. fibres minéral.
-
Faux plancher : Oui, Technique à partir du R+1
-
Production climatisation : Groupes froids
-
Sol bureaux : Dls.thermoplastiques, Moquette
Hauteurs
-
Hauteur sous-plafond : 2,70 mètre(s)
Prestations de service
-
Parking : 64 Places, Sous sols 1 et 2
-
Sécurité : Contrôle d'accès
Extérieurs
-
Terrasses - jardins : 200m² au R+1
-
Trame de façade : 1,35 mètre(s)
Normes, Certifications et Labels
-
Catégorie ERP : 5 Type W
-
Certification : HQE
Type / Etat du bâtiment
-
Etat de l'immeuble : Neuf
Informations complémentaires
-
GTC/GTB
-
Ventilo-convecteurs gainables 4 tubes
-
Reseau de chaleur urbain










