




Location Entrepôt 4 319 m²
57365 Ennery
4 319 m²
80 €
HT/HC/m²/an
Disponibilité : Immédiate

David RAYBOIS
Description
ENNERY (57)
ZI LES JONQUIERES
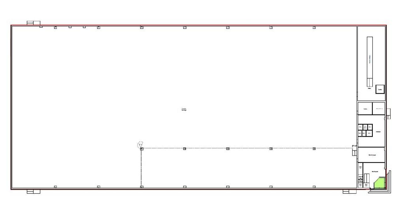
Au sein de la ZI "Les Jonquières" , nous vous proposons à la location, une messagerie d'une surface totale d'environ 4 319 m² dont 757 m² de bureaux.
Le site se situe sur le sillon mosellan, axe névralgique du département, entre les agglomérations de Metz Sud (15km) et de Thionville au Nord (20 km), sur les communes d’Ennery, de Trémery et de Flévy. A proximité de la croisée des axes autoroutiers Nord Sud (A31) et Est Ouest (A4).
BNP PARIBAS REAL ESTATE vous propose à la location une messagerie Classe C d’une surface totale d’environ 4 319 m² dont 757 m² du bureaux. Le bâtiment est situé à Ennery (57) ZI "Les Jonquières", à proximité de la croisée des axes autoroutiers Nord Sud (A31) et Est Ouest (A4). Le site se situe sur le sillon mosellan, axe névralgique du département, entre les agglomérations de Metz Sud (15km) et de Thionville au Nord (20 km), sur les communes d’Ennery, de Trémery et de Flévy.
Disponibilité : immédiate
Caractéristiques techniques
• Surface bureaux : 757 m²
• Charpente métalliques
• Hauteur libre : 6 mètres
• Portes d'accès à quai : 42
• Porte de plain-pied : 1
• Aire de manœuvre : 35 ml
Accessibilité
• Accès routiers : D1 / A4 / A31
• Aéroport Metz Nancy Lorraine à 37 km
• Gare Lorraine TGV à 30 km
• Port maritime : Nouveau Port de Metz à 13 km
Pour toute information complémentaire, contactez-nous.
Services & prestations
Hauteurs
-
Hauteur libre : 6,00 mètre(s)
Structure du bâtiment
-
Charpente : Métallique
Equipements
-
Eclairage intérieur : Halogène
-
Porte d'accès plain-pied : 1
-
Porte d'accès à quai : 42
-
Source chauffage : Pas de chauffage
Extérieurs
-
Aire de manoeuvre : 35 ml










