




Location Entrepôt Classe A 18 751 m²
85250 Chavagnes-en-Paillers
18 751 m²
Divisible dès 5 980 m²
à partir de 64 €
HT/HC/m²/an
Disponibilité : 31/05/2026

Jean-Christophe DE LAAGE
Description
CHAVAGNES-EN-PAILLERS (85) - VENDÉOPÔLE ST-FULGENT
PROJET ENTREPÔT LOGISTIQUE CLASSE A
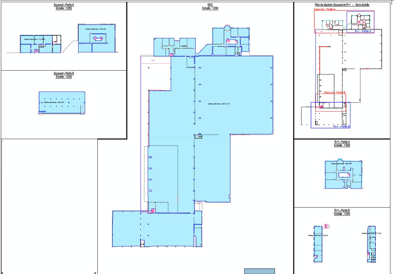
Sur un foncier de 4,38 ha, nous vous proposons en BEFA, un entrepôt logistique Classe A composé de 3 cellules et d'une superficie totale d'environ 18 750,50 m², divisibles à partir de 5 979,60 m². Actuellement en chantier. Disponibilité : Mai 2026. Lancement en Blanc. Certification BREAAM Excellent. ICPE E : 1510, 1530, 1532, 2662, 2663-1, 2663-2.
Situé en bordure de la RD137, le site bénéficie de 3 axes routiers structurants : l'A83, l'A87 reliant Angers à la Roche s/Yon et la RD137 reliant Nantes à la Rochelle.
BNP PARIBAS REAL ESTATE vous propose en BEFA, un entrepôt logistique Classe A, certification BREEAM Excellent, d'une surface totale d'environ 18 750,50 m² divisibles à partir de 5 979,60 m². Le bâtiment est situé à Chavagnes-en-Paillers (85) à proximité des axes routiers D137 / A83 / A87.
Disponibilité : Mai 2026
Caractéristiques techniques
Surface bureaux : 539,9 m²
Local de charge : 208,4 m²
Hauteur libre : 10,50 mètres
Portes d'accès à quai : 18
Portes de plain-pied : 2
Aire de manoeuvre : 35
Charges au sol : 5 tonnes / m²
Couverture : bac acier isolé
Murs : bardage double peau
Charpente béton
Sprinklers type ESFR
Parking : 92 places VL / 4 places PL
Certification BREEAM Excellent
ICPE
ICPE E : 1510, 1530, 1532, 2662, 2663-1, 2663-2
Accessibilité
Accès routiers : D137 / A83 / A87
Aéroport Nantes Atlantique à 47 km
Gare Nantes à 45 km
Pour toute information complémentaire, contactez-nous.
Services & prestations
Hauteurs
-
Hauteur libre : 10,50 mètre(s)
Normes, Certifications et Labels
-
Autorisation d'exploiter 3 : 1510, 1530, 1532, 2662, 2663-1, 2663-2
-
Certification : BREEAM
Type / Etat du bâtiment
-
Etat de l'immeuble : Neuf
Structure du bâtiment
-
Charpente : Béton
-
Couverture : Bac acier isolé
-
Murs : Bardage double peau
Equipements
-
Charge au sol Rdc : 5,00 tonne(s)/m²
-
Porte d'accès plain-pied : 2
-
Porte d'accès à quai : 18
-
Réseau Incendie Armé
-
Sprinklers : Mono couche (ESFR)
Prestations de service
-
Parking : 4 Places, 92 Places
Aménagements
-
Locaux sociaux : Et Bureaux
Extérieurs
-
Aire de manoeuvre : 35 ml
Informations complémentaires
-
Panneaux Photovoltaïques en Toiture




