




Location Local d'activité 4 632 m²
06200 Nice
4 632 m²
Divisible dès 1 275 m²
à partir de 144 €
HT/HC/m²/an
Disponibilité : 15 mois après accord

Jerome BLANCHE
Description
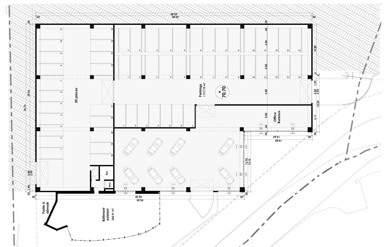
A LOUER - BÂTIMENT D'ACTIVITE NICE
A LOUER : Idéalement situé sur le boulevard du Mercantour et proche de la zone commerciale de Lingostiere batiment d'activité de 4 632 m² divisible a partir de 1 275 m². Possibilité de développer des quais de déchargement. Accès tous porteurs, portes sectionnelles et rampes d'accès pour chaque niveau. Résistance de la dalle de 2,5T/m² et belle hauteur sous poutre jusqu'à 5 mètres. Possibilité de PCM pour une extension afin de développer jusqu'à 10 000 m² de surface totale.
245569
À LOUER - BÂTIMENT D'ACTIVITÉ - NICE
Nous vous proposons un batiment de locaux d'activité a louer situés a Nice et proche de la zone commerciale de Lingostiere. Batiment neuf 4 632 m² Divisible RDC : 2 051 m² R+1 : 1 306 m² R+2 : 1 275m² + 3 523 m² de terrain plat Portes sectionnelles Rampes d'acces Charge au sol : 2.5 T /m² Hauteur libre max : 5 m Aire de manoeuvre PL Accessibilité : tous porteurs Situé a Nice proche de l'entrée de la RD6202 bis, ce batiment d'activité se trouve a proximité d'une zone commerciale ou se situent loisirs, restaurants et salle de sport. A proximité : Aéroport Nice Cote d'Azur a 11 km Autoroute A8 a 10 min RD6202 bis Les informations sur les risques auxquels ce bien est exposé sont disponibles sur le site Géorisques :
Services & prestations
Hauteurs
-
Hauteur libre : 5,50 mètre(s)
-
Hauteur sous poutre : 5,00 mètre(s)
-
Hauteur sous-plafond : 2,50 mètre(s)
Accès véhicules
-
Accessibilité type véhicules : Tous porteurs PL 44 tonnes
Equipements
-
Charge au sol Etage : 2,50 kg/m²
-
Charge au sol Rdc : 2,50 tonne(s)/m²
-
Fenêtres
-
Porte d'accès plain-pied
-
Porte d'accès à quai : 2 Buttoirs
-
Rampes d'accès
-
Sols du bâtiment : Béton
Structure du bâtiment
-
Charpente : Béton
-
Couverture : Bac acier isolé
-
Murs : Béton cellulaire
Aménagements
-
Aménagement des bureaux : Espaces Ouverts
-
Locaux sociaux : Douches/Vestiaires
-
Sanitaires : Privatif(s)
Extérieurs
-
Aire de manoeuvre : T de retournement










