



Location Local d'activité 20 030 m²
68330 Huningue
20 030 m²
Loyer sur demande
Disponibilité : 12 mois après accord

David RAYBOIS
Description
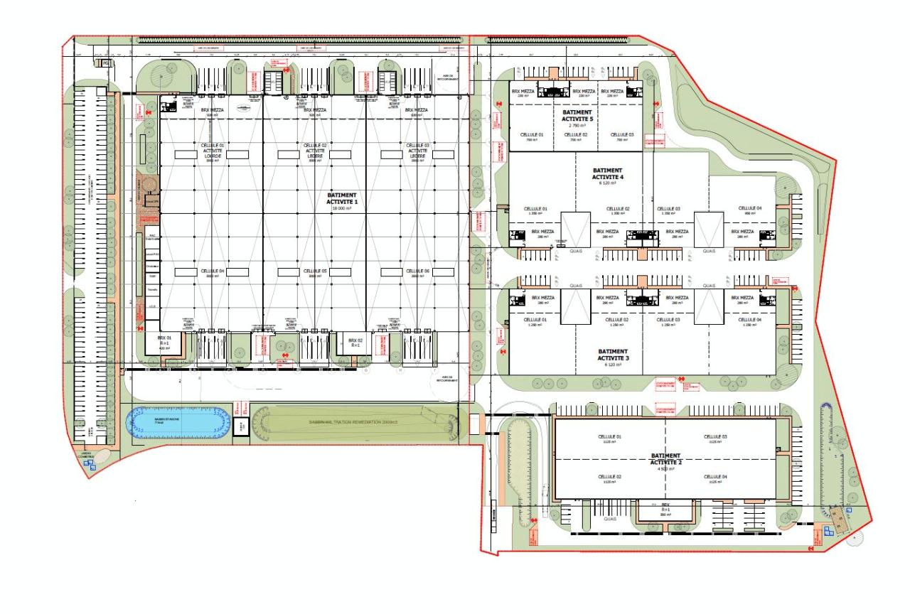
HUNINGUE (68)
Reconversion de friches industrielles prévue à Huningue Sud, site frontalier (Suisse).
Il sera composé d'un immeuble à usage d'entrepôt logistique indépendant, de classe A, labelisé Certification BREEAM Excellent et BiodiverCity, ainsi qu'un parc d'activité avec des cellules de tailles différentes . ICPE A : 1510, 1530, 1532, 2662, 2663-1, 2663-2
Les services proposés sur ce site :
• Poste de garde
• Site clos et sécurisé
Huningue est une ville frontalière avec la Suisse, située à 10 minutes de l'aéroport international de Bâle-Mulhouse et 35 minutes de Mulhouse.
Les parking en extérieur proposent plus de 100 places :
• Parking VL 90 places
• Parking PL 13 places
Le site dispose également d'une capacité d'extension pour des bureaux et du parking. de plus il est relié à la fibre.
Contactez-nous pour un complément d'information !
Services & prestations
Equipements
-
Porte d'accès à quai : 18
Prestations de service
-
Sécurité : PC Sécurité
Normes, Certifications et Labels
-
Autorisation d'exploiter 1 : 1510, 1530, 1532, 2662, 2663-1, 2663-2
Informations complémentaires
-
Raccordement à la fibre


