




Petite Rue de la Plaine
38300 Bourgoin-Jallieu
1 263 m²
Divisible dès 225 m²
1 957 650 €
HT/HD
Disponibilité : Immédiate

Louis-Martin TANTARO
Description
Bourgoin-Jallieu (69)
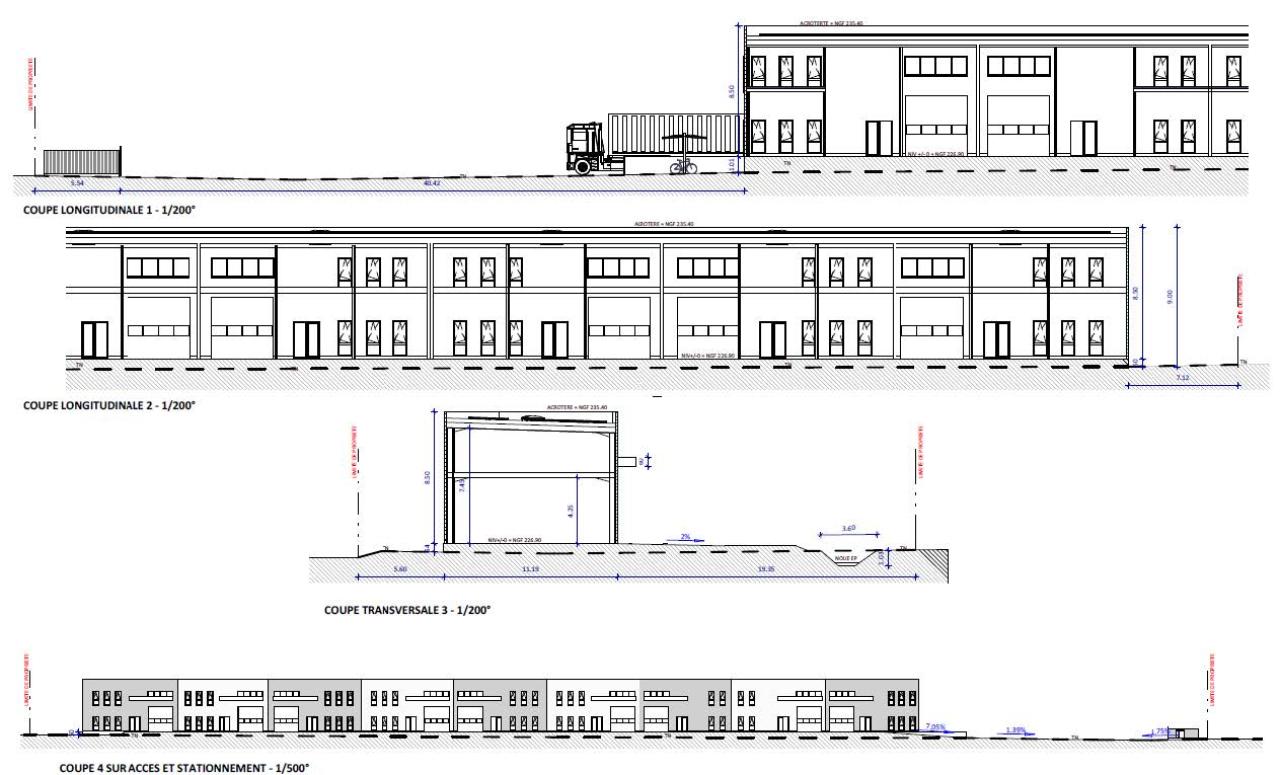
Disponible à la vente ou à la location des cellules d'activités dans un parc d'activité neuf disposant d'une bonne desserte routière, une visibilité depuis l'autoroute, et de nombreuses places de parking. le site est idéal pour les activité B to B / showroom. Plusieurs types de surfaces sont disponibles et cumulables entre elles.
Autre atout : le site prévoit un quais mutualisé permettant à toute les entreprises du parc d'accueillir des livraisons en poids lourds.
Bourgoin-Jallieu (38200) Un carrefour économique dynamique au coeur du nord-Isère
Située entre Lyon-Grenoble et Chambéry, à proximité directe de l'A43 et de l'aéroport Lyon-Saint-Exupery, Bourgoin-Jallieu s'impose comme un pôle économique majeur du Nord-Isère. Son bassin d'activités est particulièrement dynamique dans les secteurs de l'industrie, de la logistique, de l'artisanat et du tertiaire.
La ville offre aux entreprises un cadre idéal pour s'implanter et se développer.
Services & prestations
Hauteurs
-
Hauteur libre : 7,20 mètre(s) Sous Jarret
Equipements
-
Climatisation : Réversible
-
Eclairage Bureaux : Luminaires encastrés
-
Eclairage intérieur : LED
-
Faux plafond : Dal. fibres minéral.
-
Fenêtres : Fenêtres oscillo-battant 4/16/4 argon double vitrage en aluminium laqué
-
Porte d'accès à quai : Commun
-
Puissance électrique : Tarif Bleu 36,00
-
Sol bureaux : Moquette grand passage
Type / Etat du bâtiment
-
Etat des locaux : Neuf
Structure du bâtiment
-
Charpente : Métallique
-
Murs : Bardage double peau Vertical isolation 80mm
Prestations de service
-
Parking : 50 Places Clos et indépendant
-
Restauration : Réfectoire
-
Sécurité : Portail motorisé 6mX1.75m, avec digicode et télécommande fournis
Aménagements
-
Aménagement des bureaux : Cloisonnés Indépendant
-
Mezzanine : Escalier et garde corps
-
Sanitaires : Toilettes / lavabo / chauffe-eau
Extérieurs
-
Eclairage extérieur : Commun par projecteur led commandé par horloge crépusculaire
-
Terrasses - jardins : Espaces verts réalisation des plantations nécessaires
Informations complémentaires
-
Cloison périphérique + peinture, Conforme RT2020, Dallage porté type industrielle 1000kg/m2 suivant DTU 13.3 + de compression bac collaborant 250kg/m², Enrobé à chaud 150kg/m2 pour les circulations poids lourds et 120kg/m² pour les circulations VL, Escalier et garde corps mezzanine, Porte sectionnelles avec bandeau 4mX4 motorisées, Raccordement fibre, gaz, eau et électricité, Visibilité autoroute
-
Auvent bardage type Clin devant les portes piétonnes et portes sectionnelles, Boite aux lettres extérieur entré du site, Entrée indépendante avec portail électrique et boucle de sortie, Raccordement réseau EU EP, Salle archive et baie de brassage, Toiture complexe multicouche isolation 130mm Rockwool / PV ready
-
Abri vélo, Béton désactivé sur les surfaces piétonnes, Clôture rigide 173cm, Lanterneau de désenfumage (non asservie charge preneur), Local poubelle extérieur commun, Pompe à chaleur chaud et climatisation










