




Vente Local d'activité 1 637 m²
59840 Pérenchies
1 637 m²
Divisible dès 391 m²
à partir de 807 746 €
HT/HD
Disponibilité : 01/05/2026

Axel PLOUY
Description
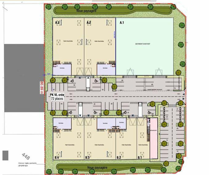
PERENCHIES
PA DE L'HORLOGE
BNP PARIBAS REAL ESTATE Lille vous propose à la vente cet entrepôt divisibles en plusieurs cellules .
L’ensemble immobilier indépendant et clôturé est situé sur la commune de PERENCHIES.
Cet implantation bénéficie d’un emplacement facilement accessible par les transports en commun, l’autoroute A25 et la Rocade Nord-Ouest.
Dans un environnement commercial, BNP Paribas Real Estate vous propose à la location des cellules neuves d'activité. Les lots disposent d'une très belle visibilité commerciale.
Des parkings sont disponibles sur la zone.
Lot A2 / Surface disponible 817 m² env.
Lot B1 / Surface disponible 429 m² env.
Lot B2 / Surface disponible 391 m² env.
Les prestations sont les suivantes :
Bâtiment sécurisé par un portail motorisé
1 accès plain pied par lot
Hauteur utile : 6 mètres
Locaux sociaux : Sanitaires
Pour étudier l'implantation de votre projet sur ce site, appelez-nous pour organiser une visite !
Trouvez votre futur local, entrepôt, hangar, cellule de stockage ou votre foncier dans les parcs d'activités de Lille et du Nord Pas de Calais. Disponibles à la location ou à la vente, nos offres s'adaptent à vos besoins en cellules industrielles ou artisanales. Ne manquez pas nos opportunités sur les surfaces à louer ou à vendre de la Métropole Lilloise.
Services & prestations
Hauteurs
-
Hauteur libre : 6,00 mètre(s)
Equipements
-
Climatisation : En option
-
Eclairage intérieur : LED
-
Fenêtres : Double vitrage
-
Porte d'accès plain-pied : 1 par lot (L:3,5m x H:4m)
-
Sol bureaux : Moquette ou PVC
-
Sols du bâtiment : Béton
-
Source chauffage : Gaz ou convecteur électrique (selon surface)
Structure du bâtiment
-
Charpente : Métallique
-
Couverture : Bac acier isolé
-
Murs : Bardage métallique / Béton isolé
Aménagements
-
Hall d'accueil
-
Locaux sociaux : Sanitaires
Extérieurs
-
Aire de manoeuvre
Informations complémentaires
-
2 tonnes / m²










