




Vente Terrain 35 266 m²
31280 Drémil-Lafage
35 266 m²
Divisible dès 1 203 m²
à partir de 115 000 €
HT/HD
Disponibilité : Nous consulter

Franck SANCHEZ
Description
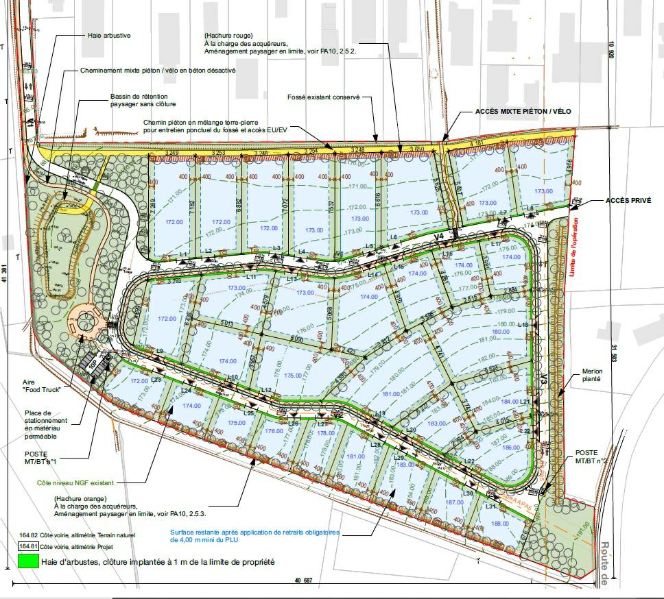
COMMUNE DE DREMIL-LAFAGE
*** Exclusivité - ISATIS PARK ***
Nous vous proposons à la vente des terrains constructibles à usage industriel / activités / stockage / bureaux situés à proximité immédiate de la zone artisanale de Drémil-Lafage. Terrains viabilisés, libres de constructeur situés au coeur d'une ZAC dont les travaux de viabilisation seront finalisés en fin d'année 2023. Surfaces à partir de 1 052 m².
*** Exclusivité - ISATIS PARK ***
Ces terrains formeront l'extension de la zone d'activités actuelle de Drémil Lafage.
À seulement 15km de Toulouse, la commune de Drémil-Lafage vit au rythme de la métropole, tout en
offrant un cadre paisible au quotidien, fait de paysages naturels variés. En lisière des coteaux du Lauragais,
cette petite ville fait partie de l'aire d'attraction de Toulouse et est un lieu privilégié par les actifs, tant
pour y vivre que pour y travailler ! Elle offre un environnement naturel plaisant et revigorant à ceux qui y
ont installé leur activité.
Au Sud-Ouest de la commune, s'étendant sur plus de 8,75 hectares, la future zone d'activités Isatis Park propose 31 terrains à bâtir mutualisables allant de 1 052 m² à 3 477 m² propices au développement de multiples activités de bureaux ou de services. Le projet prévoit pour ses occupants des infrastructures de
qualité, dont une aire d'accueil avec coin restauration, dédiés aux moments de détente et de partage entre occupants des différents locaux. Dans un cadre naturel privilégié, entre parc et point d'eau, cette future zone d'activités est la promesse d'un quotidien dynamique, enveloppé dans un écrin de tranquillité. Le projet prévoit l'aménagement de 10 places de stationnement dont 1 PMR.
Les terrains seront viabilisés et libres de constructeur. Les travaux de viabilisation sont en cours pour une livraison prévue au T2 2024.
Frais annexes :
Indemnité d'immobilisation du terrain : 2 500 TTC
Plan de vente dû au géomètre : 240 TTC/lot*
Frais de l'architecte coordonnateur : 720 TTC*
Taxe d'aménagement part départementale : 1,30%
(indexée sur la surface taxable du permis de construire)
Taxe d'aménagement part communale : 5%
(indexée sur la surface taxable du permis de construire)
Redevance archéologie préventive : 0,4%
(indexées sur la surface taxable du permis de construire)
Participation au financement de l'assainissement
collectif (PFAC) : Bureau : 17,51 x SDP x 0.66
Vous souhaitez en savoir plus ? Contactez-nous au 05 61 23 56 56 !

