- Paramétrer l'affichage
Actualiser la recherche quand je déplace la carte
Lorsque cette option est activée, les résultats de recherche s'actualisent en fonction du positionnement de la carte.Paramétrer la zone de distance
- Paramétrer la zone
Lorsque cette option est activée, une zone de distance s'affiche autour d'un point sélectionné.
Personnalisez et délimitez la zone de distance en fonction du moyen de locomotion. Par défaut, la zone est programmée à 5 min à pieds.
Moyen de locomotion :
en voitureen transportsà véloà piedsTemps de trajet :
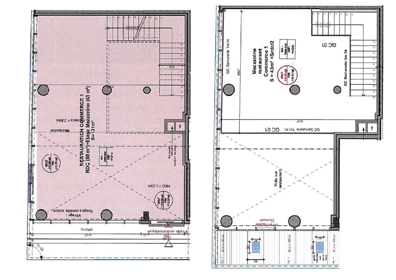
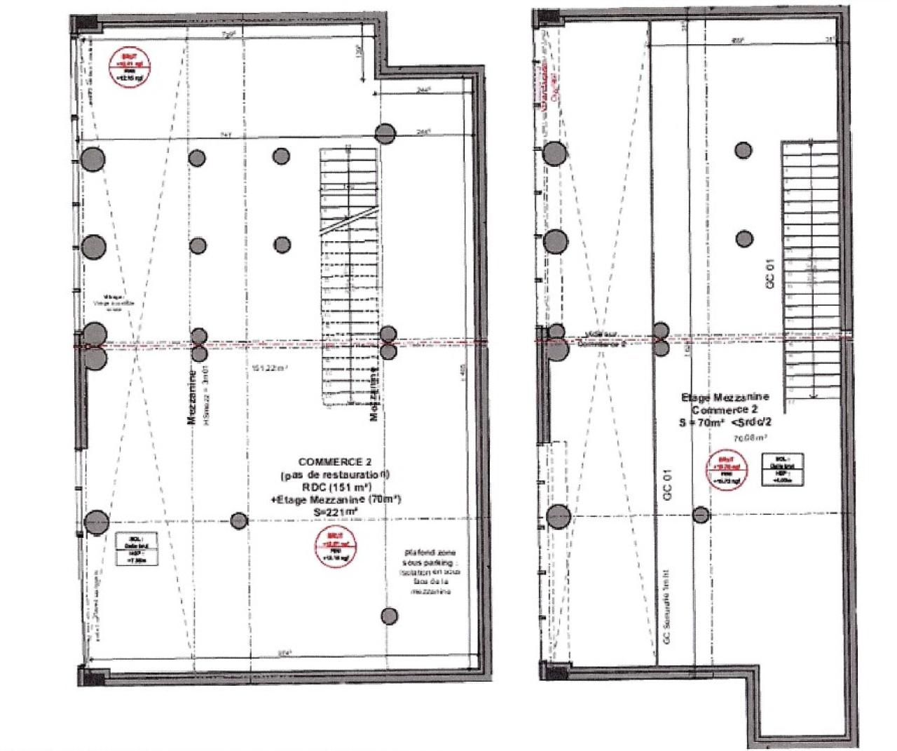
Location Commerces Montpellier (34000)
8 commerces à louer et 4 à proximité.
Comparateur

Location Commerce Montpellier : tout savoir
Nombreux sont les entrepreneurs qui souhaitent eux aussi s’installer au sein de la cité Surdouée. Forte de près de 300 000 habitants et d’un peu plus de 60 000 entreprises*, la ville de Montpellier ne démérite pas de son surnom et est plus que jamais tournée vers l’avenir.
Ville dans laquelle il fait bon vivre, Montpellier bénéficie en effet de 2 600 heures d’ensoleillement par an, et a un accès presque direct à la mer et aux étangs salés de Vic ou de l’Or.
Voici toutes les bonnes raisons de louer votre commerce à Montpellier, et de vous installer au cœur de cette ville prospère de la région Occitanie.
Pourquoi s’installer à Montpellier en y louant un commerce ?
>Peut-être cherchez-vous à louer un commerce à Montpellier afin de changer de vie ? Choisir de vivre dans la cité surdouée est une idée judicieuse : en vous y installant, vous vous situez au cœur du Sud de la France, aux portes de l’Espagne. Les amoureux du soleil et de la mer trouveront bien sûr leur bonheur à Montpellier. Sa croissance démographique est tellement soutenue depuis les années 1990 (grâce, notamment, à de nombreux français décidant de s’y installer chaque année), qu’elle est officiellement passée de la neuvième place des villes les plus peuplées de France, occupée il y a quelques années à la septième en 2018.
Louer un commerce à Montpellier vous permet donc de faire partie vous aussi de ce mouvement vers l’Hérault.
La position géographique de la ville joue bien sûr dans son attractivité : toute proche de la mer Méditerranée, des paysages singuliers des Etangs salés bordés par la Mer que l’on trouve dans les communes de Palavas-les-Flots ou de la Grande-Motte… Montpellier est également située à toute proximité de Parcs Naturels Régionaux et Nationaux : ceux des Grandes Causses, des Cévennes ou encore du Haut-Languedoc.
En optant pour Montpellier pour votre location de commerce, vous vous installez au sein d’une région attractive, que vous aurez du mal à quitter par la suite.
Louer un commerce à Montpellier, une métropole dynamique
Si vous cherchez à louer un commerce à Montpellier, ce n’est pas uniquement pour vous installer dans une belle région, c’est aussi pour y faire des affaires. Rassurez-vous, Montpellier est attractive aussi pour son dynamisme économique.
Tout d’abord, Montpellier s’est imposée depuis plusieurs années comme l’un des principaux pôles de recherche et d’innovation de France. Le secteur des hautes technologies est particulièrement développé à Montpellier : on y trouve le siège social de grandes entreprises innovantes, telles que Dell, Ert Technologies ou Vestas, mais aussi de start-ups très prometteuses, comme Swile ou Milpa. Ces entreprises emploient des salariés qualifiés, au pouvoir d’achat important, qui peuvent représenter des clients pour votre commerce.
Si votre clientèle est plutôt composée des salariés de ce type d’entreprise, pensez donc à chercher des locaux commerciaux à louer près de leur quartier d’implantation, notamment vers la zone tertiaire d’Eureka et du Millénaire.
Votre commerce est plutôt tourné vers une clientèle de passage, des touristes ? Dans ce cas, rejoignez le tissu économique dynamique que représente le centre-ville et le cœur historique de Montpellier !
Acheter un commerce à Montpellier est donc l’assurance pour vous de vous constituer un patrimoine immobilier professionnel prospère, quel que soit votre quartier d’implantation.
*chiffres INSEE 2018 et Le Figaro 2021)


































































































































































