- Paramétrer l'affichage
Actualiser la recherche quand je déplace la carte
Lorsque cette option est activée, les résultats de recherche s'actualisent en fonction du positionnement de la carte.Paramétrer la zone de distance
- Paramétrer la zone
Lorsque cette option est activée, une zone de distance s'affiche autour d'un point sélectionné.
Personnalisez et délimitez la zone de distance en fonction du moyen de locomotion. Par défaut, la zone est programmée à 5 min à pieds.
Moyen de locomotion :
en voitureen transportsà véloà piedsTemps de trajet :
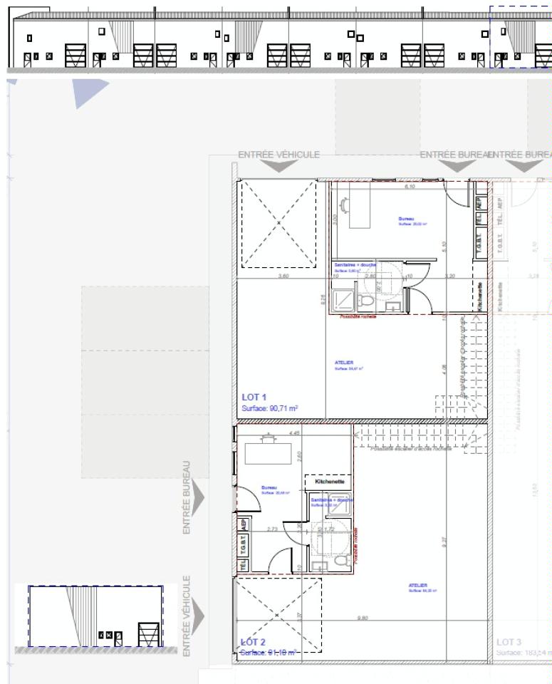
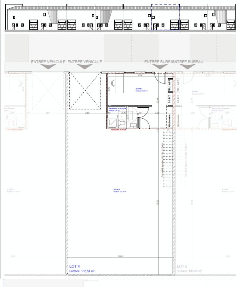
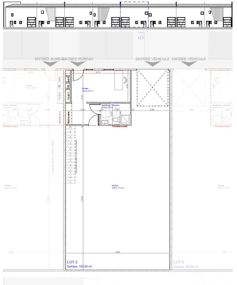
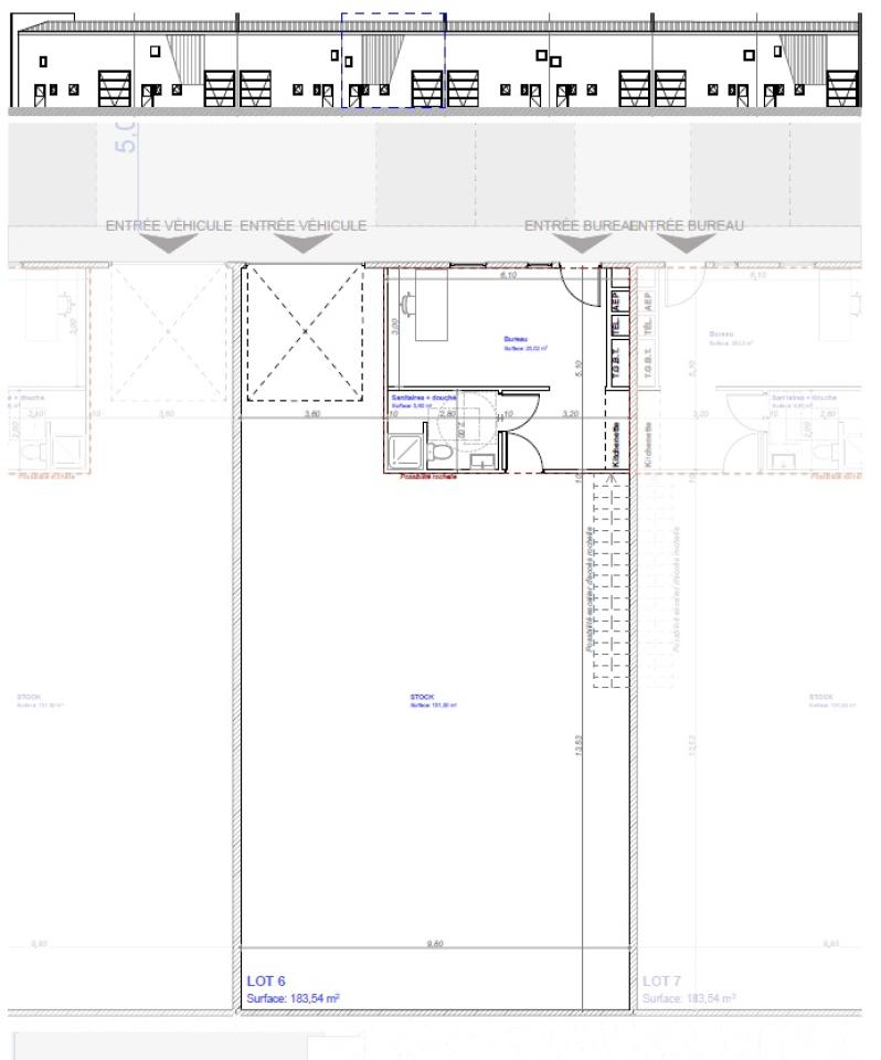
Entrepôts / logistique Aveyron (12)
1 entrepôt / logistique à vendre ou à louer et 39 à proximité.
Comparateur

Achat / vente Entrepôt / Logistique Aveyron : Tout savoir
Vous souhaitez trouver une nouvelle stratégie d'implantation pour votre entreprise du secteur tertiaire et vous souhaitez vous implanter au cœur d'un département de la grande région Occitanie ? Alors louer un local logistique ou un entrepôt dans l'Aveyron est un projet qui devrait vous aider à mener à bien vos ambitions professionnelles pour votre entreprise de stockage, d'import, d'export ou de transformation des marchandises.
Louer un local logistique ou un entrepôt dans l'Aveyron, un département tourné vers le commerce et la logistique
Pour vous, acteur du secteur tertiaire à la recherche d'un local logistique ou d'un entrepôt à louer dans l'Aveyron, vous devez savoir qu'historiquement et encore aujourd'hui, le département est un territoire plutôt porté sur le secteur primaire, l'agriculture. En effet, on cultive sur les terres aveyronnaises des fruits et légumes, on y élève des bovins et des ovins, et on y produit des articles dérivés du bois, du cuir et de diverses ressources naturelles qui servent à l'artisanat local.
De ce fait, le secteur tertiaire, et plus particulièrement les activités de stockage, de transformation et de commerce de détail et de gros sont en étroite relation avec les activités de culture et d'élevage, afin d'entreposer, empaqueter et expédier les différents produits vers le reste de la région, de la France et même de l'Europe.
D'ailleurs, on compte sur le territoire de nombreuses entreprises du secteur industriel, pour la production, et tertiaire, pour le stockage et la vente. On trouve à Rodez les sociétés appartenant au groupe Ragt : Ragt Semences (travail du grain) et Ragt Plateau Central (commerce de gros de céréales, de tabac non manufacturé, de semences et d'aliments pour le bétail), mais également Acardie Sud-Ouest, une société transformant et conservant la viande de boucherie.
Pour vous qui êtes en quête d'un local logistique ou d'un entrepôt à louer dans l'Aveyron, savoir que des entreprises de cet acabit sont présentes dans le département devrait vous convaincre de la pérénnité et du bien-fondé de votre démarche.
Se placer idéalement en Occitanie en louant un local logistique ou un entrepôt dans l'Aveyron
L'autre avantage qu'offre l'Aveyron pour ceux qui y louent un local logistique ou un entrepôt, c'est son emplacement géographique. Traversé par des axes routiers et autoroutiers majeurs comme l'A74 à l'Est, qui relie Clermont-Ferrand à Béziers, ou la N88, qui lie Lyon-Saint-Etienne à Toulouse-Albi, mais également placé non loin de grandes villes telles que Toulouse et Montpellier, l'Aveyron est un département stratégique pour ceux qui évoluent dans le commerce de détail, de gros, dans le stockage ou dans la transformation des marchandises.
Que vous soyez une petite, une grande ou une moyenne entreprise, un projet tel que la location de local logistique ou d'entrepôt au sein de l'Aveyron vous permettra de placer votre activité au milieu d'axes majeurs, favorisant vos échanges commerciaux avec vos partenaires d'un côté et clients de l'autre.




























































































































































































































































































































































































































































































































































