- Paramétrer l'affichage
Actualiser la recherche quand je déplace la carte
Lorsque cette option est activée, les résultats de recherche s'actualisent en fonction du positionnement de la carte.Paramétrer la zone de distance
- Paramétrer la zone
Lorsque cette option est activée, une zone de distance s'affiche autour d'un point sélectionné.
Personnalisez et délimitez la zone de distance en fonction du moyen de locomotion. Par défaut, la zone est programmée à 5 min à pieds.
Moyen de locomotion :
en voitureen transportsà véloà piedsTemps de trajet :
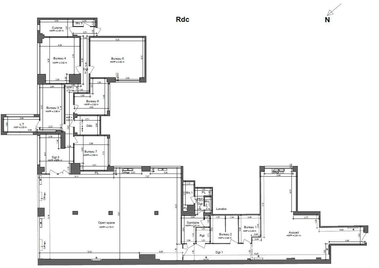
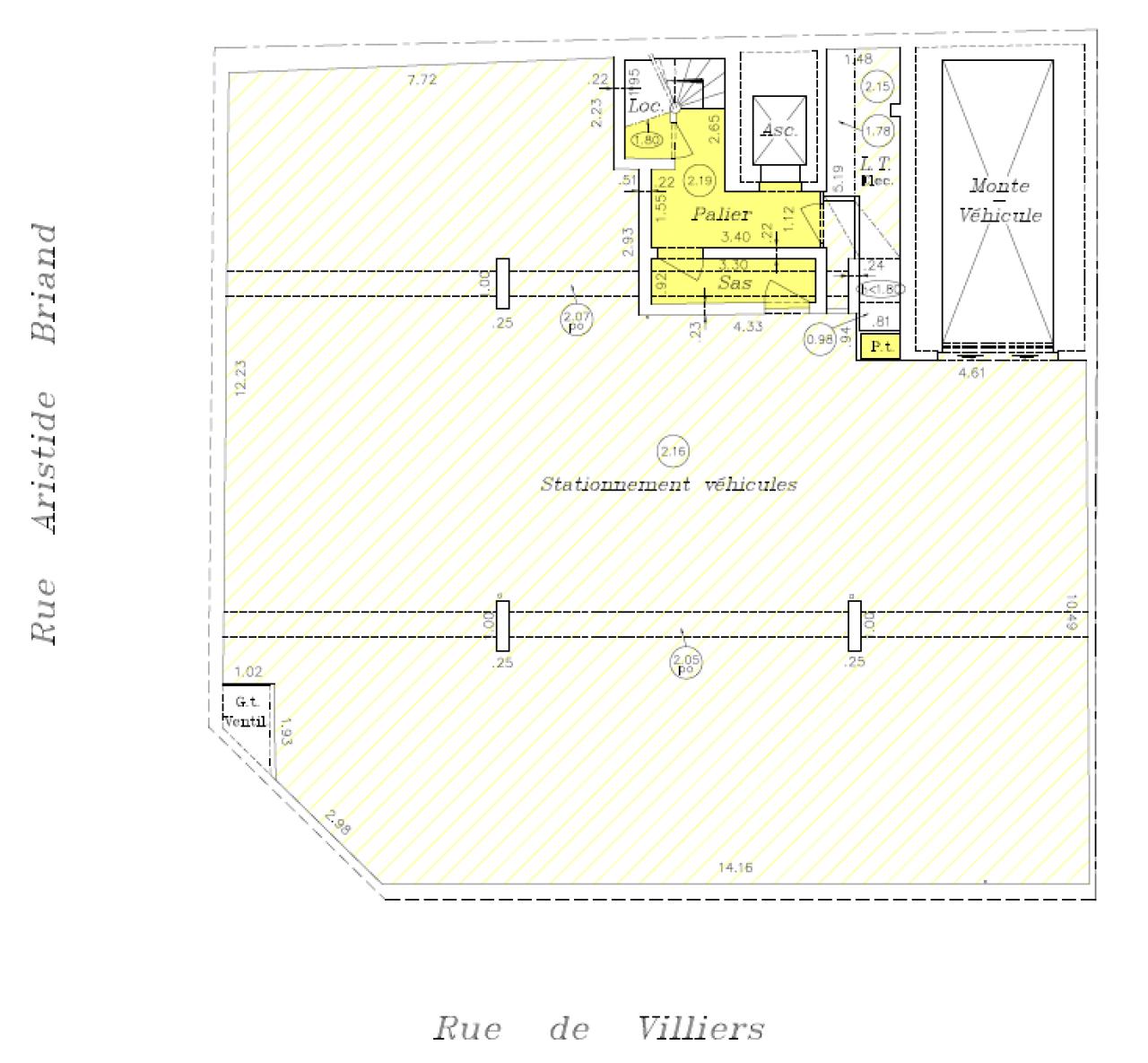
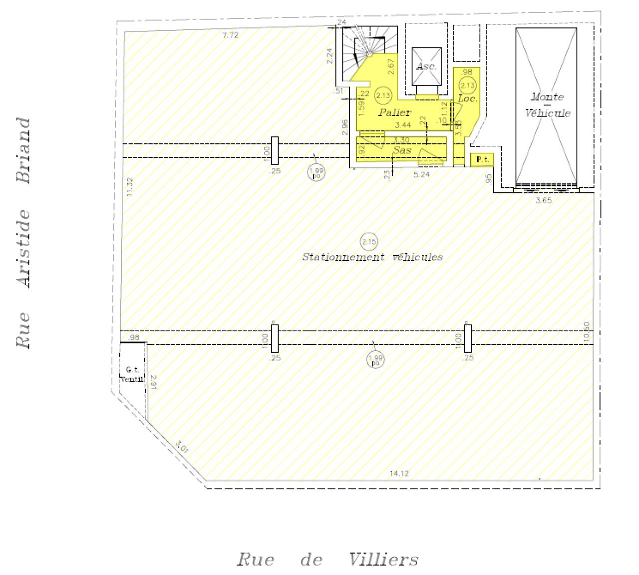
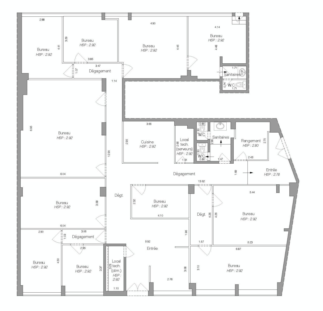
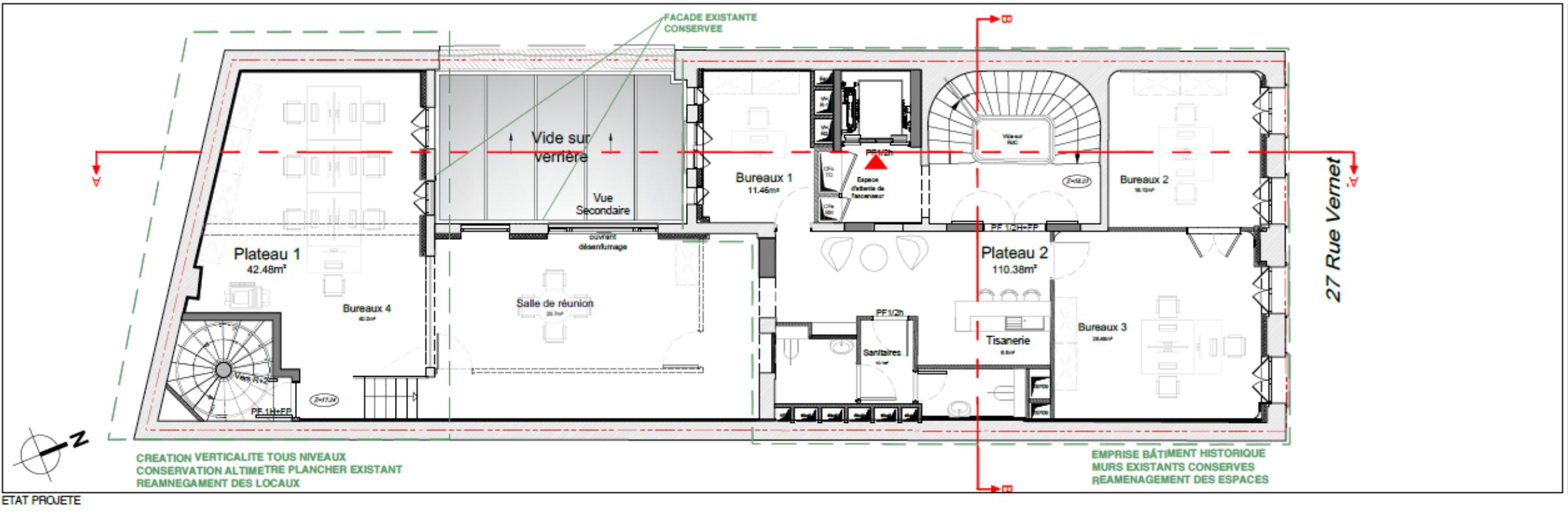
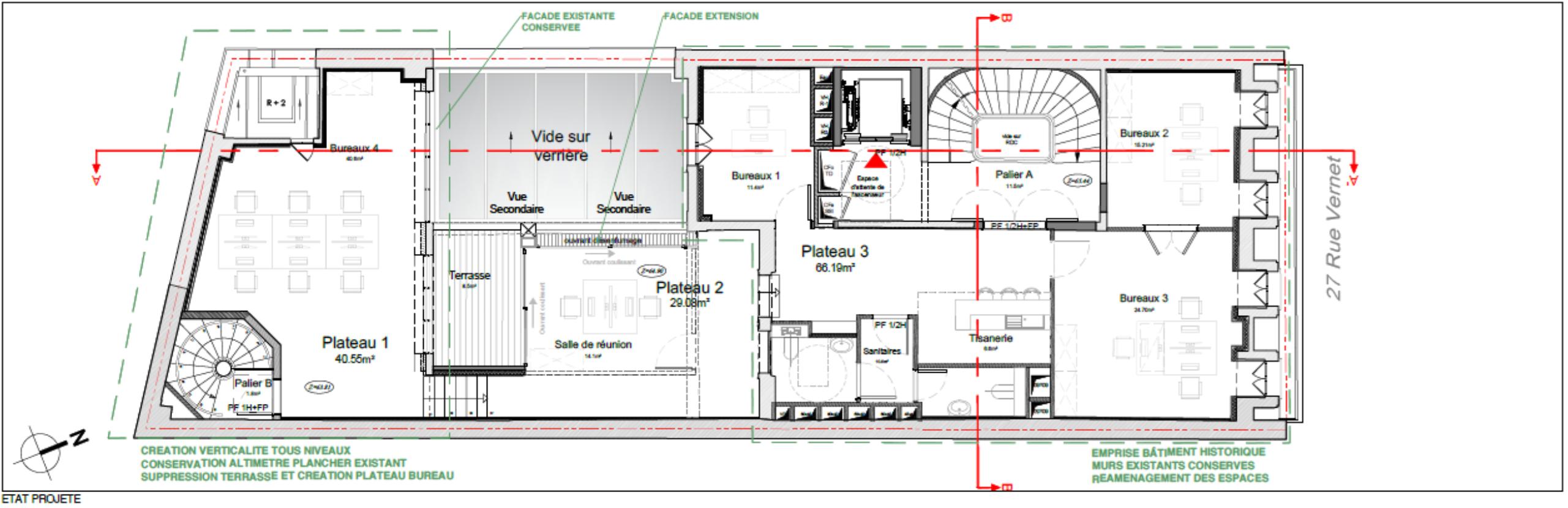
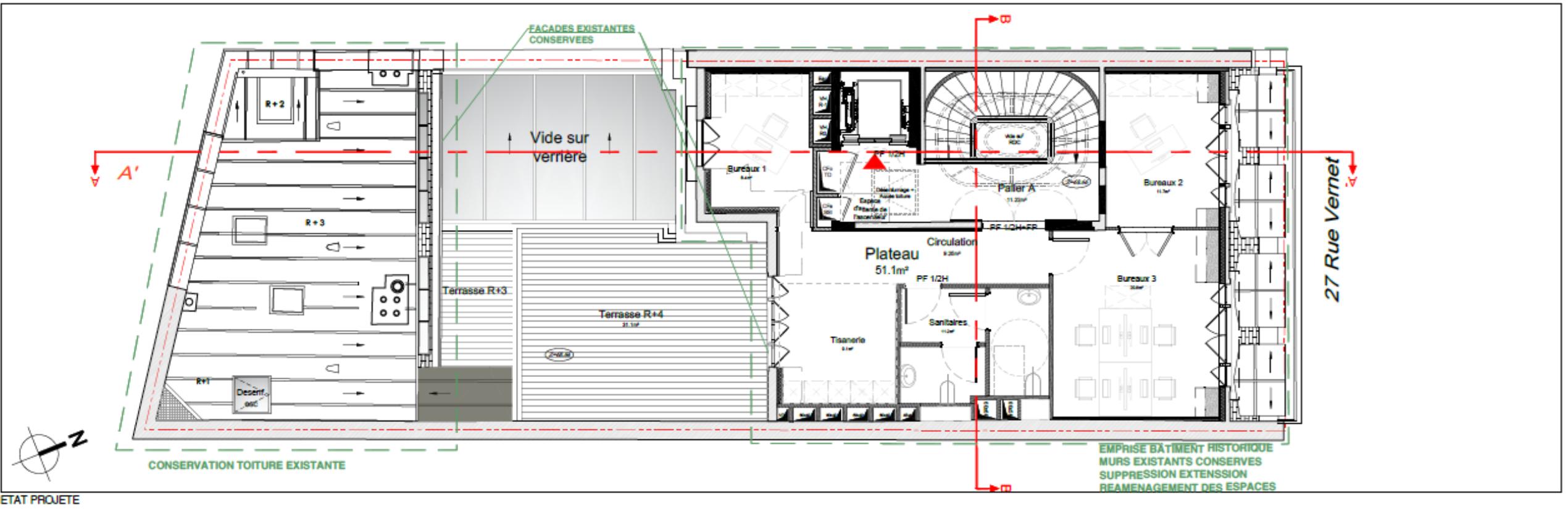
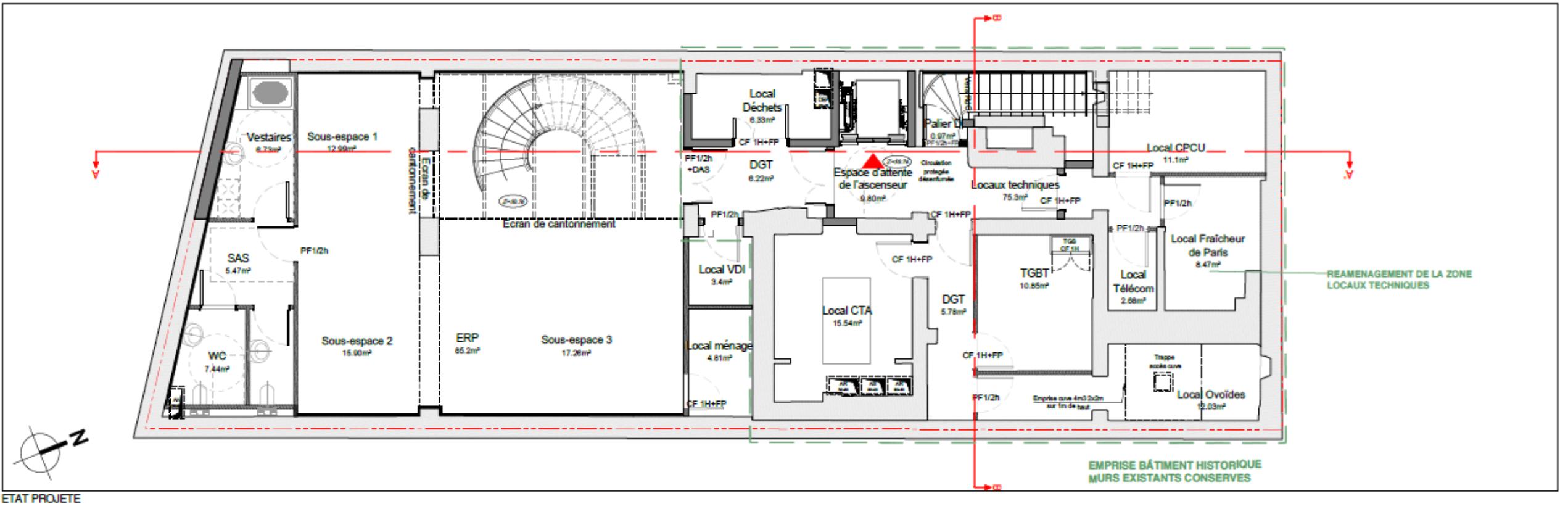
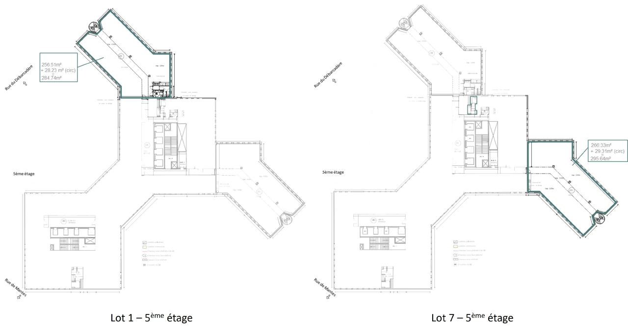
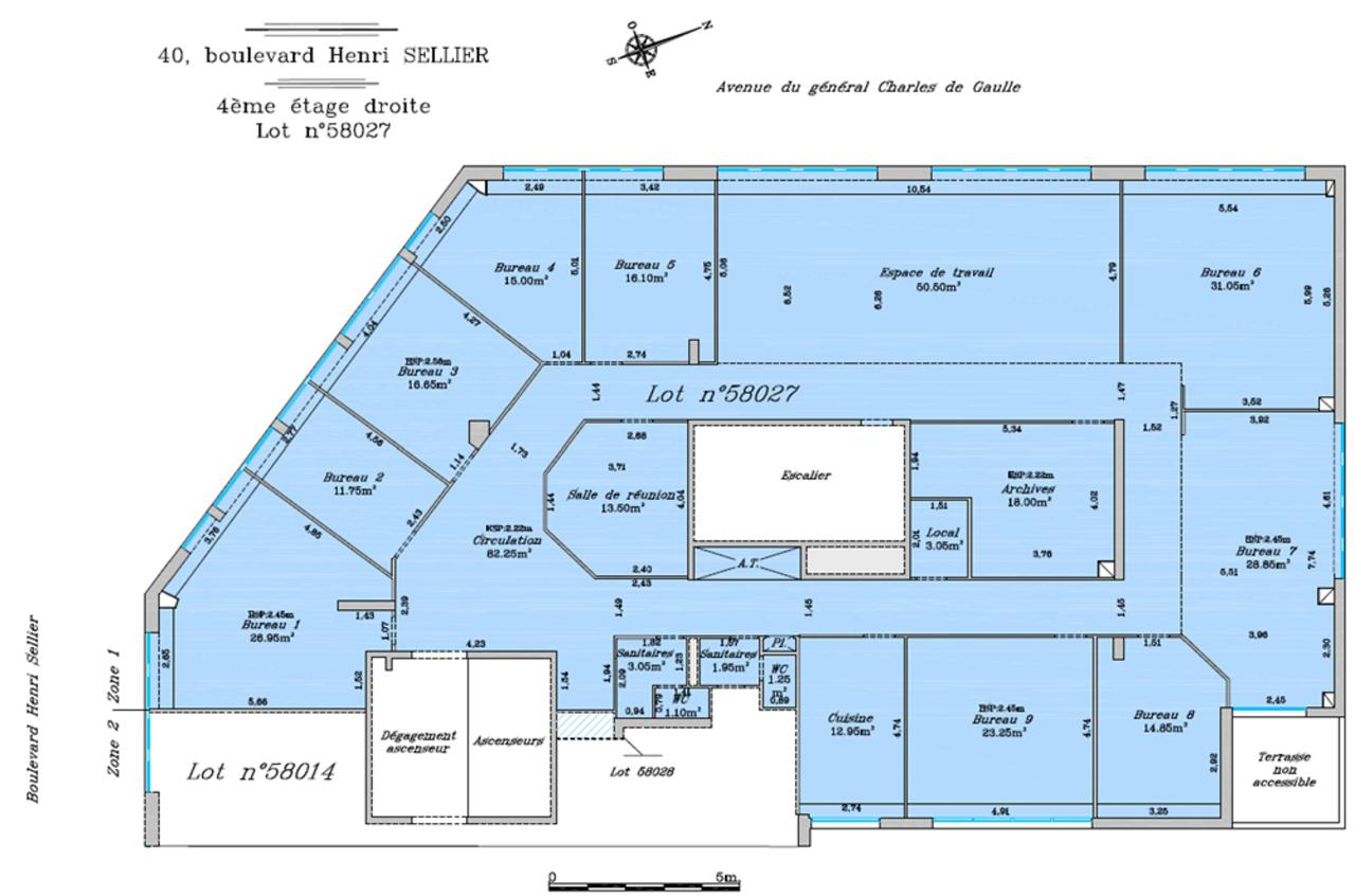
Vente Bureaux Neuilly-sur-Seine (92200)
3 bureaux à vendre et 37 à proximité.
Comparateur

Achat / vente Bureau Neuilly-sur-Seine : Tout savoir
Privilégier l'achat de bureaux ou la location de bureaux à Neuilly-sur-Seine, c'est offrir à son entreprise une adresse de prestige. Située en Île-de-France dans le département des Hauts-de-Seine, sa proximité avec le quartier de la Défense n'est pas le moindre des atouts de cette ville au tissu économique particulièrement dense.
La devise de Neuilly-sur-Seine : Déjà illustre par son passé, de jour en jour plus florissante ne cesse de se vérifier. Les secteurs d'activités présentant le plus fort potentiel sont le conseil et l'assistance aux entreprises, notamment le conseil en gestion. De grandes entreprises y ont implanté leur siège social dans des secteurs comme la cosmétique et le luxe, la communication, les produits pharmaceutiques ou encore l'informatique.
Les bureaux à vendre à Neuilly-sur-Seine bénéficient d'un cadre de vie préservé au centre de tous les réseaux de transport en commun. La ville comprend 3 stations de métro sur la ligne 1, la station de RER C Porte Maillot et 13 lignes de bus. Elle compte 13000 places de stationnement publiques et plus de 23000 places privées. Plusieurs pistes cyclables ont été créées sur l'axe Peretti-Roule. Avec 9 % de sa surface en espaces verts, dont 7 ha sur les bords de Seine, Neuilly est une ville où il fait bon vivre et travailler. De plus, elle se situe à proximité de grandes villes telles que Boulogne-Billancourt et Nanterre.
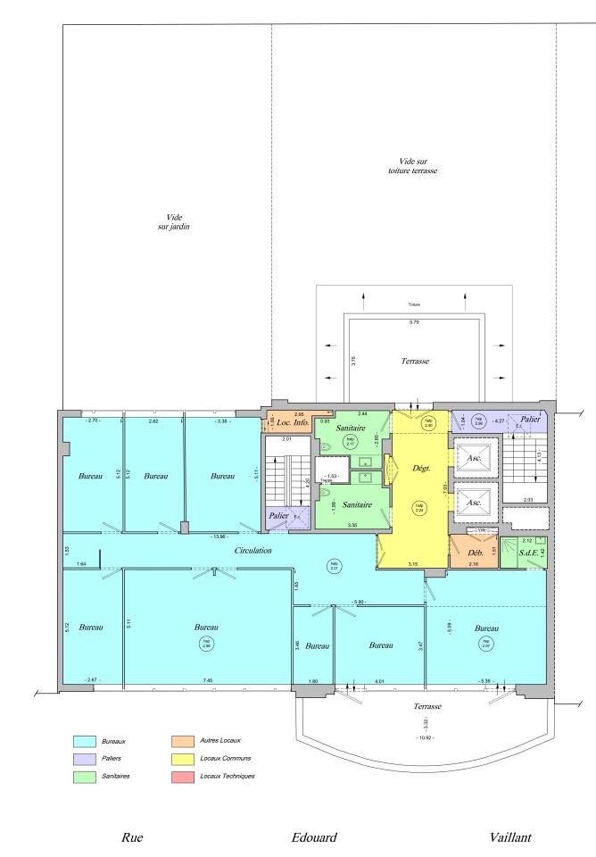
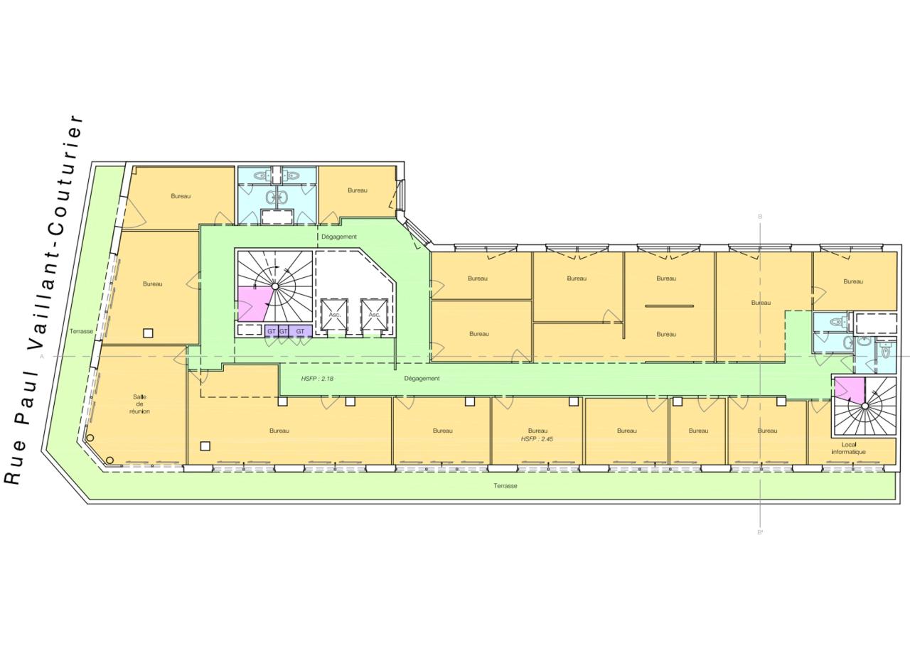
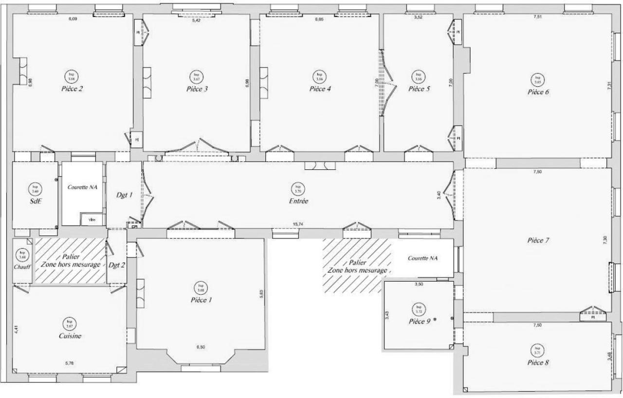
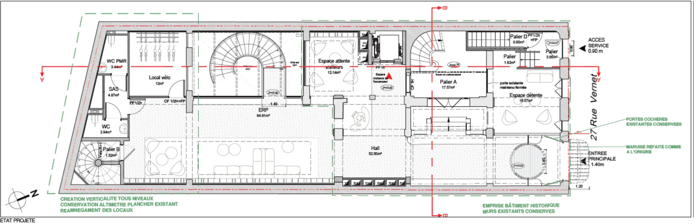
La construction d'immeubles abritant des bureaux à vendre a toujours été une priorité de la ville, tant la demande est constante et soutenue. Parce que l'immobilier professionnel se diversifie pour atteindre un équilibre indispensable, les entreprises qui souhaitent s'implanter trouvent un large choix de locaux d'entreprises et de bureaux à vendre à Neuilly-sur-Seine. On peut trouver des emplacements intéressants dans d'anciens hôtels particuliers (vente d'hôtels avec bureaux) en plein centre-ville ou bien investir dans des programmes entièrement neufs dans le quartier d'affaires. La fourchette de prix se situe entre environ 5500 €/m² et 9500 €/m² pour des surfaces allant de 60 m² à plus de 650 m².












































































































































































































































































































































































































































