Que recherchez-vous ?
Quel est votre besoin ?





Créer une alerte
- Trier par
Afficher des points d'intérêts
- Afficher les points d'intérêts
Afficher des points d'intérêts
TransportsMétroRERBusTramwayGare ferroviaireAéroportVélo partagéTaxiCommerce & ServiceRestaurantParkingCentre commercialSupermarché et HypermarchéSupéretteBoulangerieCrècheBureau de posteBanqueStation serviceParc & JardinParc, Jardin et SquareHotelHotelSportSalle de sportStade & GymnaseSantéHôpitalMédecin généralisteMédecin spécialistePharmacieService PublicGendarmerieMairiePréfecture
- Paramétrer l'affichage
Actualiser la recherche quand je déplace la carte
Lorsque cette option est activée, les résultats de recherche s'actualisent en fonction du positionnement de la carte.Paramétrer la zone de distance
- Paramétrer la zone
Lorsque cette option est activée, une zone de distance s'affiche autour d'un point sélectionné.
Personnalisez et délimitez la zone de distance en fonction du moyen de locomotion. Par défaut, la zone est programmée à 5 min à pieds.
Moyen de locomotion :
en voitureen transportsà véloà piedsTemps de trajet :
annonces à la même adresse
À partir de
HT/HC/m²/an
À partir de
HT/HC/m²/an
Location Locaux d'activité Oullins (69600)
0 local d'activités à louer et 40 à proximité.
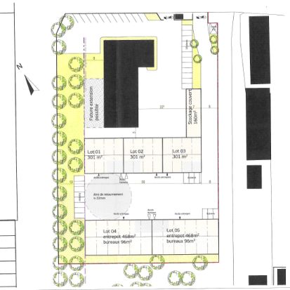
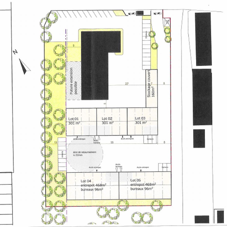
ExclusivitéLocation Local d'activité1 039 m²
(Divisible dès 335 m²)
à partir de 100 €
HT/HC/m²/an
Informations :
- HT : Hors taxes
- HC : Hors charges locatives
- Honoraires à la charge de l'acquéreur : Nous consulter. à la signature du bail
Location Local d'activité486 m²
69 €
HT/HC/m²/an
Informations :
- HT : Hors taxes
- HC : Hors charges locatives
- Honoraires à la charge de l'acquéreur : 10% HT du loyer HT/HC. à la signature du bail
Location Local d'activité875 m²
114 €
HT/HC/m²/an
Informations :
- HT : Hors taxes
- HC : Hors charges locatives
- Honoraires à la charge de l'acquéreur : Nous consulter. à la signature du bail
Location Local d'activité1 438 m²
(Divisible dès 304 m²)
83 €
HT/HC/m²/an
Informations :
- HT : Hors taxes
- HC : Hors charges locatives
- Honoraires à la charge de l'acquéreur : 15% HT du loyer HT/HC. à la signature du bail
Pas le temps de consulter toutes les annonces ?
Nos équipes peuvent vous accompagner dans votre recherche, et vous proposer une sélection d'annonces adaptés à votre projet.
Location Local d'activité420 m²
114 €
HT/HC/m²/an
Informations :
- HT : Hors taxes
- HC : Hors charges locatives
- Honoraires à la charge de l'acquéreur : 15% HT du loyer HT/HC. à la signature du bail
Location Local d'activité966 m²
124 €
HT/HC/m²/an
Informations :
- HT : Hors taxes
- HC : Hors charges locatives
- Honoraires à la charge de l'acquéreur : 20% HT du loyer HT/HC. à la signature du bail
Location Local d'activité989 m²
(Divisible dès 421 m²)
121 €
HT/HC/m²/an
Informations :
- HT : Hors taxes
- HC : Hors charges locatives
- Honoraires à la charge de l'acquéreur : 20% HT du loyer HT/HC. à la signature du bail
Location Local d'activité5 262 m²
55 €
HT/HC/m²/an
Informations :
- HT : Hors taxes
- HC : Hors charges locatives
- Honoraires à la charge de l'acquéreur : 15% HT du loyer HT/HC. à la signature du bail
Location Local d'activité740 m²
122 €
HT/HC/m²/an
Informations :
- HT : Hors taxes
- HC : Hors charges locatives
- Honoraires à la charge de l'acquéreur : Nous consulter. à la signature du bail
Local d'activité : créer son cahier des charges
Pour vous lancer avec succès dans votre recherche, il est nécessaire de bien intégrer toutes les variables susceptibles d’influencer votre choix. Le meilleur outil pour y parvenir reste la création d’un cahier des charges.
Location Local d'activité348 m²
90 €
HT/HC/m²/an
Informations :
- HT : Hors taxes
- HC : Hors charges locatives
- Honoraires à la charge de l'acquéreur : 15% HT du loyer HT/HC. à la signature du bail
Location Local d'activité1 351 m²
(Divisible dès 280 m²)
93 €
HT/HC/m²/an
Informations :
- HT : Hors taxes
- HC : Hors charges locatives
- Honoraires à la charge de l'acquéreur : 15% HT du loyer HT/HC. à la signature du bail
Location Local d'activité2 746 m²
105 €
HT/HC/m²/an
Informations :
- HT : Hors taxes
- HC : Hors charges locatives
- Honoraires à la charge de l'acquéreur : 15% HT du loyer HT/HC. à la signature du bail
Location Local d'activité268 m²
120 €
HT/HC/m²/an
Informations :
- HT : Hors taxes
- HC : Hors charges locatives
- Honoraires à la charge de l'acquéreur : 15% HT du loyer HT/HC. à la signature du bail
Location Local d'activité300 m²
132 €
HT/HC/m²/an
Informations :
- HT : Hors taxes
- HC : Hors charges locatives
- Honoraires à la charge de l'acquéreur : 15% HT du loyer HT/HC. à la signature du bail
Trouvez vos futurs locaux à louer :
Location Local d'activité364 m²
124 €
HT/HC/m²/an
Informations :
- HT : Hors taxes
- HC : Hors charges locatives
- Honoraires à la charge de l'acquéreur : Nous consulter. à la signature du bail
Location Local d'activité408 m²
127 €
HT/HC/m²/an
Informations :
- HT : Hors taxes
- HC : Hors charges locatives
- Honoraires à la charge de l'acquéreur : 15% HT du loyer HT/HC. à la signature du bail
Location Local d'activité731 m²
118 €
HT/HC/m²/an
Informations :
- HT : Hors taxes
- HC : Hors charges locatives
- Honoraires à la charge de l'acquéreur : Nous consulter. à la signature du bail
Location Local d'activité729 m²
125 €
HT/HC/m²/an
Informations :
- HT : Hors taxes
- HC : Hors charges locatives
- Honoraires à la charge de l'acquéreur : 15% HT du loyer HT/HC. à la signature du bail
Location Local d'activité744 m²
97 €
HT/HC/m²/an
Informations :
- HT : Hors taxes
- HC : Hors charges locatives
- Honoraires à la charge de l'acquéreur : 20% HT du loyer HT/HC. à la signature du bail
Location Local d'activité1 475 m²
90 €
HT/HC/m²/an
Informations :
- HT : Hors taxes
- HC : Hors charges locatives
- Honoraires à la charge de l'acquéreur : 15% HT du loyer HT/HC. à la signature du bail
Location Local d'activité682 m²
84 €
HT/HC/m²/an
Informations :
- HT : Hors taxes
- HC : Hors charges locatives
- Honoraires à la charge de l'acquéreur : 15% HT du loyer HT/HC. à la signature du bail
Location Local d'activité350 m²
100 €
HT/HC/m²/an
Informations :
- HT : Hors taxes
- HC : Hors charges locatives
- Honoraires à la charge de l'acquéreur : 15% HT du loyer HT/HC. à la signature du bail
Location Local d'activité404 m²
(Divisible dès 123 m²)
à partir de 115 €
HT/HC/m²/an
Informations :
- HT : Hors taxes
- HC : Hors charges locatives
- Honoraires à la charge de l'acquéreur : Nous consulter. à la signature du bail
Location Local d'activité3 830 m²
Loyer sur demande
Location Local d'activité3 688 m²
82 €
HT/HC/m²/an
Informations :
- HT : Hors taxes
- HC : Hors charges locatives
- Honoraires à la charge de l'acquéreur : 15% HT du loyer HT/HC. à la signature du bail
Location Local d'activité715 m²
56 €
HT/HC/m²/an
Informations :
- HT : Hors taxes
- HC : Hors charges locatives
- Honoraires à la charge de l'acquéreur : 20% HT du loyer HT/HC. à la signature du bail
Location Local d'activité1 115 m²
65 €
HT/HC/m²/an
Informations :
- HT : Hors taxes
- HC : Hors charges locatives
- Honoraires à la charge de l'acquéreur : 20% HT du loyer HT/HC. à la signature du bail
Location Local d'activité219 m²
89 €
HT/HC/m²/an
Informations :
- HT : Hors taxes
- HC : Hors charges locatives
- Honoraires à la charge de l'acquéreur : 20% HT du loyer HT/HC. à la signature du bail
Location Local d'activité11 305 m²
87 €
HT/HC/m²/an
Informations :
- HT : Hors taxes
- HC : Hors charges locatives
- Honoraires à la charge de l'acquéreur : 15% HT du loyer HT/HC. à la signature du bail
Location Local d'activité2 913 m²
100 €
HT/HC/m²/an
Informations :
- HT : Hors taxes
- HC : Hors charges locatives
- Honoraires à la charge de l'acquéreur : 15% HT du loyer HT/HC. à la signature du bail
Location Local d'activité160 m²
115 €
HT/HC/m²/an
Informations :
- HT : Hors taxes
- HC : Hors charges locatives
- Honoraires à la charge de l'acquéreur : 15% HT du loyer HT/HC. à la signature du bail
Location Local d'activité911 m²
(Divisible dès 300 m²)
à partir de 80 €
HT/HC/m²/an
Informations :
- HT : Hors taxes
- HC : Hors charges locatives
- Honoraires à la charge de l'acquéreur : Nous consulter. à la signature du bail
Location Local d'activité620 m²
87 €
HT/HC/m²/an
Informations :
- HT : Hors taxes
- HC : Hors charges locatives
- Honoraires à la charge de l'acquéreur : Nous consulter. à la signature du bail
Location Local d'activité304 m²
à partir de 102 €
HT/HC/m²/an
Informations :
- HT : Hors taxes
- HC : Hors charges locatives
- Honoraires à la charge de l'acquéreur : 15% HT du loyer HT/HC. à la signature du bail
Location Local d'activité272 m²
107 €
HT/HC/m²/an
Informations :
- HT : Hors taxes
- HC : Hors charges locatives
- Honoraires à la charge de l'acquéreur : Nous consulter. à la signature du bail
Location Local d'activité461 m²
178 €
HT/HC/m²/an
Informations :
- HT : Hors taxes
- HC : Hors charges locatives
- Honoraires à la charge de l'acquéreur : Nous consulter. à la signature du bail
ExclusivitéLocation Local d'activité373 m²
105 €
HT/HC/m²/an
Informations :
- HT : Hors taxes
- HC : Hors charges locatives
- Honoraires à la charge de l'acquéreur : 15% HT du loyer HT/HC. à la signature du bail
Location Local d'activité6 226 m²
(Divisible dès 229 m²)
110 €
HT/HC/m²/an
Informations :
- HT : Hors taxes
- HC : Hors charges locatives
- Honoraires à la charge de l'acquéreur : Nous consulter. à la signature du bail
Location Local d'activité370 m²
89 €
HT/HC/m²/an
Informations :
- HT : Hors taxes
- HC : Hors charges locatives
- Honoraires à la charge de l'acquéreur : Nous consulter. à la signature du bail
Location Local d'activité3 827 m²
106 €
HT/HC/m²/an
Informations :
- HT : Hors taxes
- HC : Hors charges locatives
- Honoraires à la charge de l'acquéreur : 15% HT du loyer HT/HC. à la signature du bail

Sélectionner jusqu’à 5 biens pour comparer
Comparateur
| Annuler la suppression |
Photos |
Aménagement |
Prix |
Surface |
Capacité |
Carte |
Personnaliser la zone de distance
Personnalisez et délimitez la zone de distance en fonction du moyen de locomotion. Par défaut, la zone est programmée à 5 mn à pieds.
Personnaliser la zone de distance
Personnalisez et délimitez la zone de distance en fonction du moyen de locomotion. Par défaut, la zone est programmée à 5 mn à pieds.
Moyen de locomotion :
Temps de trajet :

Location Local d'activité Oullins : Tout savoir
FAQ de l'immobilier d'entreprise
Trouvez toutes les réponses à vos questions sur l'immobilier d'entreprise grâce à notre FAQ
Comment acheter un local d'activité ?
Vous êtes artisan ou commerçant et vous envisagez d'investir dans l'achat d'une boutique à Paris, à Lyon ou à Bordeaux ? Vous exercez une profession libérale et vous recherchez un local professionnel à vendre pour développer votre clientèle? Quel que soit votre profil d'investisseur, acheter un local d'activité ne s'improvise pas et vous devrez, dans un premier temps, valider que l'achat de loc
En savoir plusComment choisir son local d'activité ?
Pour trouver un local d'activité à vendre ou à louer adapté à votre projet, il est essentiel de rédiger un cahier des charges. Ce document vous sera d'une aide précieuse dans la définition de vos besoins et de vos critères de choix. Parmi les premiers éléments à définir: la localisation du local. Si vous êtes commerçant, vous choisirez probablement un emplacement central, animé et facilement ac
En savoir plusQuelle TVA est applicable sur les locaux d'activité ?
Les locaux faisant l’objet d’un contrat de bail commercial ou d’un bail professionnelsont susceptibles d’être taxés à la taxe de la valeur ajoutée (TVA). Cette taxe s'applique si les locaux d'activités sont loués équipés et comprennent par exemple du mobilier, du matériel ou des installations nécessaires à l’exercice de l’activité. Dans ce cas, le loyer sera soumis à un taux de TVA de 20 %, sauf s
En savoir plusQuelle assurance choisir pour ses locaux d'activité ?
Pour le locataire comme pour le propriétaire-bailleur d'un local d'activité, il est essentiel de porter une attention particulière à la mise en place des contrats d'assurance adéquats pour une protection de leurs intérêts respectifs. Côté propriétaire : depuis la loi ALUR, tout copropriétaire, qu’il soit occupant ou bailleur, a l'obligation de souscrire à une assurance responsabilité civile. On
En savoir plusQuelles différences entre un local commercial et professionnel ?
Selon le type d'activité que vous comptez exercez dans vos futurs locaux, vous signerez soit un bail professionnel, soit un bail commercial. La différence entre un local professionnel et un local commercial réside donc dans la nature du contrat de location qui spécifie l'usage et les conditions contractuelles d'occupation des locaux. Tout d'abord, un local commercial doit être affecté administr
En savoir plusQuelles sont les questions à poser lors de la visite de locaux d'activité ?
Vous recherchez une boutique à louer pour développer vos activités commerciales? Vous exercez en libéral et vous envisagez de vous installer dans un nouveau local pour bénéficier d'une meilleure visibilité? Quels que soient les objectifs et le contexte de votre projet immobilier professionnel, il est essentiel de bien préparer vos visites en listant notamment toutes les questions à poser à propos
En savoir plus
























































































































































































































































































































































































































































































