Que recherchez-vous ?
Quel est votre besoin ?





Créer une alerte
- Trier par
Afficher des points d'intérêts
- Afficher les points d'intérêts
Afficher des points d'intérêts
TransportsMétroRERBusTramwayGare ferroviaireAéroportVélo partagéTaxiCommerce & ServiceRestaurantParkingCentre commercialSupermarché et HypermarchéSupéretteBoulangerieCrècheBureau de posteBanqueStation serviceParc & JardinParc, Jardin et SquareHotelHotelSportSalle de sportStade & GymnaseSantéHôpitalMédecin généralisteMédecin spécialistePharmacieService PublicGendarmerieMairiePréfecture
- Paramétrer l'affichage
Actualiser la recherche quand je déplace la carte
Lorsque cette option est activée, les résultats de recherche s'actualisent en fonction du positionnement de la carte.Paramétrer la zone de distance
- Paramétrer la zone
Lorsque cette option est activée, une zone de distance s'affiche autour d'un point sélectionné.
Personnalisez et délimitez la zone de distance en fonction du moyen de locomotion. Par défaut, la zone est programmée à 5 min à pieds.
Moyen de locomotion :
en voitureen transportsà véloà piedsTemps de trajet :
annonces à la même adresse
À partir de
HT/HC/m²/an
À partir de
HT/HC/m²/an
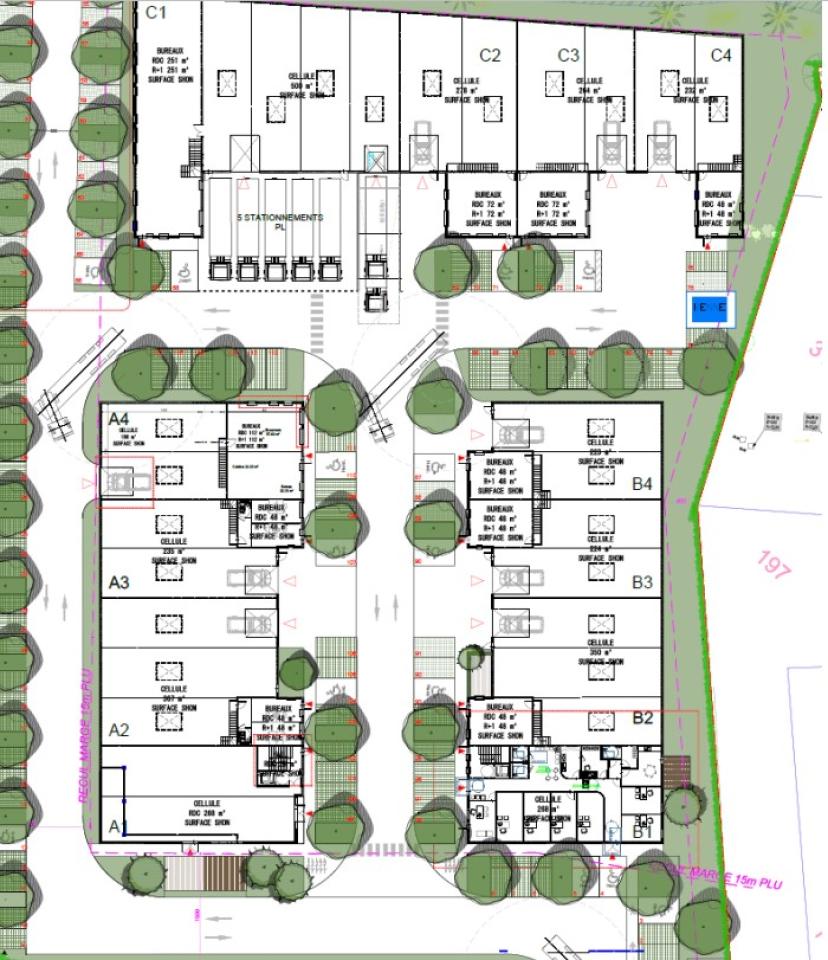
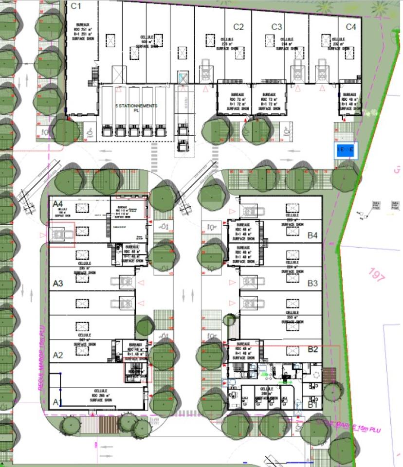
Locaux d'activité Somain (59490)
1 local d'activités à vendre ou à louer et 39 à proximité.
Vente Local d'activité2 897 m²
950 000 €
HT/HD
Informations :
- HT : Hors taxes
- HD : Hors droits de notaires
- Honoraires à la charge de l'acquéreur : 5% HT du prix HT/HD. à la signature de l'acte
Location Local d'activité2 836 m²
67 €
HT/HC/m²/an
Informations :
- HT : Hors taxes
- HC : Hors charges locatives
- Honoraires à la charge de l'acquéreur : 15% HT du loyer HT/HC. à la signature du bail
Location Local d'activité4 130 m²
Loyer sur demande
Location Entrepôt Classe A5 063 m²
50 €
HT/HC/m²/an
Informations :
- HT : Hors taxes
- HC : Hors charges locatives
- Honoraires à la charge de l'acquéreur : Nous consulter. à la signature du bail
Location Local d'activité13 135 m²
(Divisible dès 259 m²)
à partir de 110 €
HT/HC/m²/an
Informations :
- HT : Hors taxes
- HC : Hors charges locatives
- Honoraires à la charge de l'acquéreur : 15% HT du loyer HT/HC. à la signature du bail
Vente Local d'activité13 135 m²
(Divisible dès 259 m²)
Prix sur demande
Vente Local d'activité447 m²
à partir de 514 050 €
HT/HD
Informations :
- HT : Hors taxes
- HD : Hors droits de notaires
- Honoraires à la charge de l'acquéreur : Nous consulter. à la signature de l'acte
Vente Local d'activité8 800 m²
2 310 000 €
HT/HD
Informations :
- HT : Hors taxes
- HD : Hors droits de notaires
- Honoraires à la charge de l'acquéreur : 5% HT du prix HT/HD. à la signature de l'acte
Vente Local d'activité11 760 m²
5 292 000 €
HT/HD
Informations :
- HT : Hors taxes
- HD : Hors droits de notaires
- Honoraires à la charge de l'acquéreur : 5% HT du prix HT/HD. à la signature de l'acte
Location Local d'activité1 023 m²
(Divisible dès 182 m²)
Loyer sur demande
Location Local d'activité909 m²
(Divisible dès 355 m²)
Loyer sur demande
Vente Local d'activité909 m²
(Divisible dès 355 m²)
à partir de 479 250 €
HT/HD
Informations :
- HT : Hors taxes
- HD : Hors droits de notaires
- Honoraires à la charge de l'acquéreur : 5% HT du prix HT/HD. à la signature de l'acte
Location Local d'activité1 656 m²
57 €
HT/HC/m²/an
Informations :
- HT : Hors taxes
- HC : Hors charges locatives
- Honoraires à la charge de l'acquéreur : 15% HT du loyer HT/HC. à la signature du bail
Location Local d'activité100 m²
Loyer sur demande
Location Local d'activité1 145 m²
(Divisible dès 340 m²)
Loyer sur demande
Vente Local d'activité1 145 m²
(Divisible dès 340 m²)
à partir de 459 000 €
HT/HD
Informations :
- HT : Hors taxes
- HD : Hors droits de notaires
- Honoraires à la charge de l'acquéreur : 5% HT du prix HT/HD. à la signature de l'acte
Location Entrepôt Classe A6 160 m²
(Divisible dès 3 000 m²)
48 €
HT/HC/m²/an
Informations :
- HT : Hors taxes
- HC : Hors charges locatives
- Honoraires à la charge de l'acquéreur : Nous consulter. à la signature du bail
Location Entrepôt Classe A6 068 m²
50 €
HT/HC/m²/an
Informations :
- HT : Hors taxes
- HC : Hors charges locatives
- Honoraires à la charge de l'acquéreur : Nous consulter. à la signature du bail
Location Local d'activité6 500 m²
55 €
HT/HC/m²/an
Informations :
- HT : Hors taxes
- HC : Hors charges locatives
- Honoraires à la charge de l'acquéreur : 15% HT du loyer HT/HC. à la signature du bail
Location Entrepôt Classe B8 587 m²
45 €
HT/HC/m²/an
Informations :
- HT : Hors taxes
- HC : Hors charges locatives
- Honoraires à la charge de l'acquéreur : Nous consulter. à la signature du bail
Location Local d'activité245 m²
82 €
HT/HC/m²/an
Informations :
- HT : Hors taxes
- HC : Hors charges locatives
- Honoraires à la charge de l'acquéreur : 15% HT du loyer HT/HC. à la signature du bail
Location Local d'activité700 m²
86 €
HT/HC/m²/an
Informations :
- HT : Hors taxes
- HC : Hors charges locatives
- Honoraires à la charge de l'acquéreur : 15% HT du loyer HT/HC. à la signature du bail
Location Local d'activité890 m²
Loyer sur demande
Location Local d'activité1 100 m²
Loyer sur demande
Location Local d'activité460 m²
Loyer sur demande
Location Local d'activité10 356 m²
(Divisible dès 4 462 m²)
à partir de 190 000 €
HT/HC/m²/an
Informations :
- HT : Hors taxes
- HC : Hors charges locatives
- Honoraires à la charge de l'acquéreur : Nous consulter. à la signature du bail
Location Local d'activité2 241 m²
(Divisible dès 588 m²)
Loyer sur demande
Vente Local d'activité2 241 m²
(Divisible dès 588 m²)
à partir de 852 012 €
HT/HD
Informations :
- HT : Hors taxes
- HD : Hors droits de notaires
- Honoraires à la charge de l'acquéreur : 4% HT du prix HT/HD. à la signature de l'acte
Location Local d'activité698 m²
64 €
HT/HC/m²/an
Informations :
- HT : Hors taxes
- HC : Hors charges locatives
- Honoraires à la charge de l'acquéreur : 15% HT du loyer HT/HC. à la signature du bail
Location Local d'activité684 m²
Loyer sur demande
Vente Local d'activité1 292 m²
(Divisible dès 268 m²)
à partir de 451 500 €
HT/HD
Informations :
- HT : Hors taxes
- HD : Hors droits de notaires
- Honoraires à la charge de l'acquéreur : Nous consulter. à la signature de l'acte
Location Local d'activité2 428 m²
(Divisible dès 321 m²)
Loyer sur demande
Vente Local d'activité2 428 m²
(Divisible dès 321 m²)
à partir de 462 550 €
HT/HD
Informations :
- HT : Hors taxes
- HD : Hors droits de notaires
- Honoraires à la charge de l'acquéreur : 5% HT du prix HT/HD. à la signature de l'acte
Location Local d'activité1 289 m²
(Divisible dès 537 m²)
Loyer sur demande
Vente Local d'activité1 289 m²
(Divisible dès 537 m²)
à partir de 925 000 €
HT/HD
Informations :
- HT : Hors taxes
- HD : Hors droits de notaires
- Honoraires à la charge de l'acquéreur : 5% HT du prix HT/HD. à la signature de l'acte
Vente Local d'activité1 000 m²
1 155 000 €
HT/HD
Informations :
- HT : Hors taxes
- HD : Hors droits de notaires
- Honoraires à la charge de l'acquéreur : 5% HT du prix HT/HD. à la signature de l'acte
Location Entrepôt Classe C5 620 m²
Loyer sur demande
Location Entrepôt Classe B8 944 m²
Loyer sur demande
Location Local d'activité1 009 m²
Loyer sur demande
Location Local d'activité2 500 m²
Loyer sur demande

Sélectionner jusqu’à 5 biens pour comparer
Comparateur
| Annuler la suppression |
Photos |
Prix |
Surface |
Capacité |
Carte |
Personnaliser la zone de distance
Personnalisez et délimitez la zone de distance en fonction du moyen de locomotion. Par défaut, la zone est programmée à 5 mn à pieds.
Personnaliser la zone de distance
Personnalisez et délimitez la zone de distance en fonction du moyen de locomotion. Par défaut, la zone est programmée à 5 mn à pieds.
Moyen de locomotion :
Temps de trajet :

Location et vente Local d'activité Somain : tout savoir
Vous pourrez développer votre activité dans vos nouveaux locaaux d'activités à Somain après avoir consulté les annonces qui correspondent à vos besoins professionnels.
Consultez dès maintenant la liste des locaaux d'activités à vendre ou louer de notre site.
FAQ de l'immobilier d'entreprise
Trouvez toutes les réponses à vos questions sur l'immobilier d'entreprise grâce à notre FAQ
Quelle assurance choisir pour ses locaux d'activité ?
Pour le locataire comme pour le propriétaire-bailleur d'un local d'activité, il est essentiel de porter une attention particulière à la mise en place des contrats d'assurance adéquats pour une protection de leurs intérêts respectifs. Côté propriétaire : depuis la loi ALUR, tout copropriétaire, qu’il soit occupant ou bailleur, a l'obligation de souscrire à une assurance responsabilité civile. On
En savoir plusQuelles sont les questions à poser lors de la visite de locaux d'activité ?
Vous recherchez une boutique à louer pour développer vos activités commerciales? Vous exercez en libéral et vous envisagez de vous installer dans un nouveau local pour bénéficier d'une meilleure visibilité? Quels que soient les objectifs et le contexte de votre projet immobilier professionnel, il est essentiel de bien préparer vos visites en listant notamment toutes les questions à poser à propos
En savoir plusQuelles différences entre un local commercial et professionnel ?
Selon le type d'activité que vous comptez exercez dans vos futurs locaux, vous signerez soit un bail professionnel, soit un bail commercial. La différence entre un local professionnel et un local commercial réside donc dans la nature du contrat de location qui spécifie l'usage et les conditions contractuelles d'occupation des locaux. Tout d'abord, un local commercial doit être affecté administr
En savoir plusComment acheter un local d'activité ?
Vous êtes artisan ou commerçant et vous envisagez d'investir dans l'achat d'une boutique à Paris, à Lyon ou à Bordeaux ? Vous exercez une profession libérale et vous recherchez un local professionnel à vendre pour développer votre clientèle? Quel que soit votre profil d'investisseur, acheter un local d'activité ne s'improvise pas et vous devrez, dans un premier temps, valider que l'achat de loc
En savoir plusQuelle TVA est applicable sur les locaux d'activité ?
Les locaux faisant l’objet d’un contrat de bail commercial ou d’un bail professionnelsont susceptibles d’être taxés à la taxe de la valeur ajoutée (TVA). Cette taxe s'applique si les locaux d'activités sont loués équipés et comprennent par exemple du mobilier, du matériel ou des installations nécessaires à l’exercice de l’activité. Dans ce cas, le loyer sera soumis à un taux de TVA de 20 %, sauf s
En savoir plusComment choisir son local d'activité ?
Pour trouver un local d'activité à vendre ou à louer adapté à votre projet, il est essentiel de rédiger un cahier des charges. Ce document vous sera d'une aide précieuse dans la définition de vos besoins et de vos critères de choix. Parmi les premiers éléments à définir: la localisation du local. Si vous êtes commerçant, vous choisirez probablement un emplacement central, animé et facilement ac
En savoir plus






































































































































































































































































































































































































