- Paramétrer l'affichage
Actualiser la recherche quand je déplace la carte
Lorsque cette option est activée, les résultats de recherche s'actualisent en fonction du positionnement de la carte.Paramétrer la zone de distance
- Paramétrer la zone
Lorsque cette option est activée, une zone de distance s'affiche autour d'un point sélectionné.
Personnalisez et délimitez la zone de distance en fonction du moyen de locomotion. Par défaut, la zone est programmée à 5 min à pieds.
Moyen de locomotion :
en voitureen transportsà véloà piedsTemps de trajet :
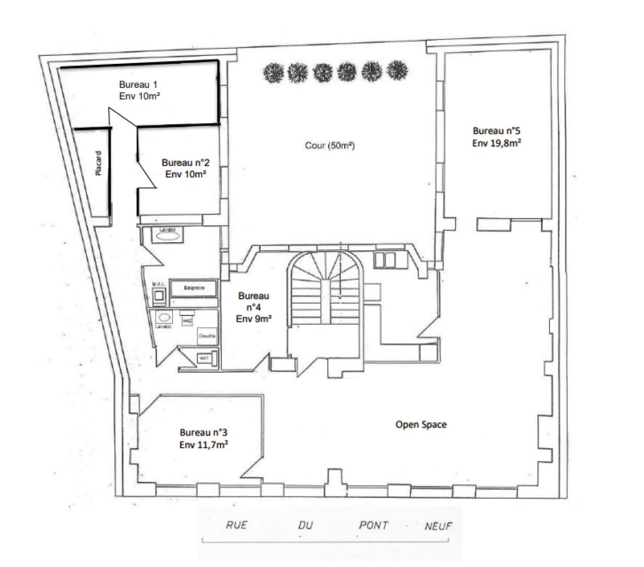
Location Bureaux Paris 1 (75001)
17 bureaux à louer et 23 à proximité.
Comparateur

Location Bureau Paris 1 : tout savoir
Location de bureaux à Paris 1er : guide complet
Le 1er arrondissement de Paris, situé au cœur de la capitale, est l’un des secteurs les plus anciens et emblématiques de la ville. Avec ses quartiers historiques, notamment Les Halles, et ses institutions prestigieuses comme le Conseil d’État, la Cour des Comptes ou le Palais de Justice, cet arrondissement est un lieu stratégique pour les entreprises souhaitant louer des bureaux à Paris 1er. Entre immobilier de prestige, espaces verts et commerces haut de gamme, le 1er arrondissement combine attractivité historique et dynamisme économique.
Pourquoi louer des bureaux à Paris 1er ?
Louer un bureau dans le 1er arrondissement de Paris offre de nombreux avantages pour les entreprises :
Accessibilité optimale grâce aux lignes de métro 1, 4, 7, 8, 11, 12 et 14, ainsi qu’aux RER A, B et D à Châtelet-Les Halles.
Proximité avec les principaux centres d’affaires et quartiers voisins : Paris 2ème, Paris 3ème, Paris 4ème, Paris 6ème, Paris 7ème et Paris 8ème arrondissements.
Image de prestige et visibilité nationale et internationale pour les entreprises.
Cadre de vie attractif : jardins, restaurants, boutiques et hôtels de luxe.
Le 1er arrondissement de Paris est ainsi idéal pour les sociétés recherchant un emplacement central, prestigieux et dynamique, tout en restant proche des axes de transport majeurs.
Le luxe et le prestige au cœur de Paris 1
La rue du Louvre, la Place Vendôme et les alentours du Palais-Royal concentrent les boutiques de luxe, les maisons de haute couture et les joailleries internationales. La location de bureaux à Paris 1er attire donc autant les entreprises du secteur du luxe que les sociétés souhaitant profiter de cette image de marque prestigieuse.
Le quartier des Halles, quant à lui, reste un centre commercial et culturel majeur, mêlant commerces traditionnels et locaux d’entreprise modernes. Ce mélange entre histoire, commerce et dynamisme fait du 1er arrondissement un secteur stratégique pour implanter son activité.
Activités et entreprises dans le 1er arrondissement
Plus de 9 000 entreprises ont choisi le 1er arrondissement pour y installer leur siège ou leurs bureaux, tandis que près de 3 500 commerces y sont implantés. Entre acteurs du luxe, startups et entreprises de services, le 1er arrondissement de Paris propose une mixité économique unique.
Le tourisme d’affaires et culturel contribue également à l’attractivité du secteur, générant un flux constant de visiteurs et de clients potentiels pour les entreprises installées dans cet arrondissement.
Se déplacer facilement dans le 1er arrondissement
Le 1er arrondissement bénéficie d’une accessibilité exceptionnelle :
Métro : lignes 1, 4, 7, 8, 11, 12, 14
RER : lignes A, B, D à Châtelet-Les Halles
Accès rapide aux gares principales et aux aéroports Roissy-Charles-de-Gaulle et Orly
Taxis, stations Vélib et Autolib pour des déplacements locaux rapides
Cette connectivité fluide facilite les trajets professionnels et les interactions avec les autres quartiers parisiens et les pôles économiques comme La Défense.
Où louer un bureau à Paris 1er ?
Saint-Germain-l’Auxerrois
Et si vous choisissiez de louer des bureaux au cœur du 1er arrondissement de Paris, à deux pas du Louvre et de la place de la Concorde ? Ce quartier historique, riche de son passé royal et révolutionnaire, offre un cadre de vie dynamique et attractif. Aisément accessible grâce aux stations de métro Louvre-Rivoli (Métro lignes 1 et 7) et Châtelet-Les Halles (lignes 1, 4, 7, 11, 14 et RER A, B, D). Le quartier est riche en bureaux modernes et fonctionnels aménagés dans des immeubles haussmanniens typiques, pour répondre aux besoins des entreprises d'aujourd'hui.
Idéalement situé à proximité du Louvre et de la Place de la Concorde, ce quartier historique offre des bureaux modernes dans des immeubles haussmanniens, accessibles via Louvre-Rivoli ou Châtelet-Les Halles. Le cadre y est prestigieux, avec un environnement culturel et touristique exceptionnel, parfait pour renforcer l’image de marque de votre entreprise.
Découvrir les offres de bureaux à louer dans les quartier Saint-Germain-l'Auxerrois
Les Halles
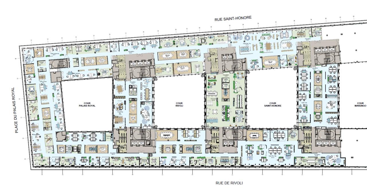
Centre commercial et culturel incontournable, Les Halles proposent des bureaux neufs, lumineux et modulables, proches du Forum des Halles. Ce quartier dynamique et central est idéal pour les entreprises qui souhaitent allier visibilité, modernité et flux constant de visiteurs. Louer des bureaux aux Halles, c’est s’installer dans un quartier en plein renouveau, un centre commercial et un pôle de transport majeur de la capitale. La connectivité exceptionnelle grâce aux stations de métro Châtelet-Les Halles, Halles, Rambuteau (lignes 1, 4, 7, 11, 14) et RER Châtelet-Les Halles (RER A, B, D) en fait l’une des stations les plus fréquentées de Paris. Des bureaux modernes et lumineux dans des immeubles neufs sont disponibles, répondant aux dernières normes environnementales et offrant une grande flexibilité d'aménagement. Ancien cœur du commerce parisien, les Halles abritent aujourd'hui le Forum des Halles, un espace dédié à l'art et à la culture, et des enseignes commerciales nombreuses et variées. Installez vos bureaux dans un quartier vivant et animé avec ses nombreux restaurants, bars, boutiques, cinémas et centres de loisirs, à proximité de la Bourse de Paris et du centre Pompidou, et offrez à vos collaborateurs un emplacement central et dynamique.
Découvrir les offres de bureaux à louer dans les quartier les Halles
Le Palais-Royal
Le Palais-Royal offre un environnement calme et prestigieux avec ses jardins historiques et ses bâtiments de standing. Les bureaux à louer dans ce secteur séduisent particulièrement les sociétés recherchant une adresse haut de gamme et élégante. Les stations de métro Louvre-Rivoli (lignes 1 et 7) et Palais-Royal - Musée du Louvre (lignes 1 et 7) facilitent grandement l’accès au quartier de Palais Royal.
Découvrir les offres de bureaux à louer dans les quartier Palais Royal
Place Vendôme
Lieu emblématique du luxe et de l’élégance, la Place Vendôme est parfaite pour les entreprises souhaitant une adresse internationale prestigieuse. Les bureaux disponibles y allient architecture somptueuse, modernité et équipements haut de gamme. Ce quartier situé au cœur du 1er arrondissement de Paris est l’un des plus illustres de la Capitale. Des bureaux somptueux et raffinés mais aussi modernes et équipés de tous les services nécessaires sont prêts à accueillir de nouvelles entreprises, dans des immeubles d'exception à l'architecture somptueuse. Haut lieu de la joaillerie et de la haute couture, la place Vendôme abrite les plus grandes maisons, telles que Cartier, Van Cleef & Arpels et Chanel. Choisir ce cadre de travail unique, c’est placer votre entreprise dans un lieu d'exception géographique et symbolique, à deux pas de l'Opéra Garnier et de la rue de la Paix. C’est un quartier vibrant et cosmopolite avec ses nombreux restaurants gastronomiques, bars tendances et hôtels de luxe, son atmosphère raffinée et son savoir-vivre hors pair, très valorisant également pour vos collaborateurs, et facile d’accès grâce à la ligne 1 du métro.
Découvrir les offres de bureaux à louer dans les quartier Vendôme
Conclusion
Louer un bureau à Paris 1er arrondissement, c’est choisir un emplacement central et prestigieux, idéal pour développer son activité, renforcer son image de marque et bénéficier d’une connectivité optimale dans la capitale. Que ce soit pour des startups, PME ou grandes entreprises, le 1er arrondissement offre une large offre de bureaux à louer adaptés à tous les besoins professionnels.
Dans le cadre de votre recherche, n'hésitez pas à consulter les offres à proximité :
Découvrir les offres de location de bureaux dans Paris 2ème
Découvrir les offres de location de bureaux à Paris




























































































































































































































































































































































































































































































































































